Sous compromis : UNE MAISON AVEC JARDIN ET GARAGE AU COEUR DE PESSAC - DISPONIBLE IMMEDIATEMENT
A 5 kilomètres du centre-ville de Bordeaux, Pessac est une commune où il fait bon vivre, où les vins de Graves se transforment en crus classés réputés à travers le monde Ses multiples visages, sa situation géographique privilégiée et ses solutions de mobilité en font une ville connectée et très agréable à vivre pour tous les âges et types de ménages. Vivre à Pessac, c'est bénéficier de tous les équipements, commerces, loisirs et services nécessaires au quotidien.
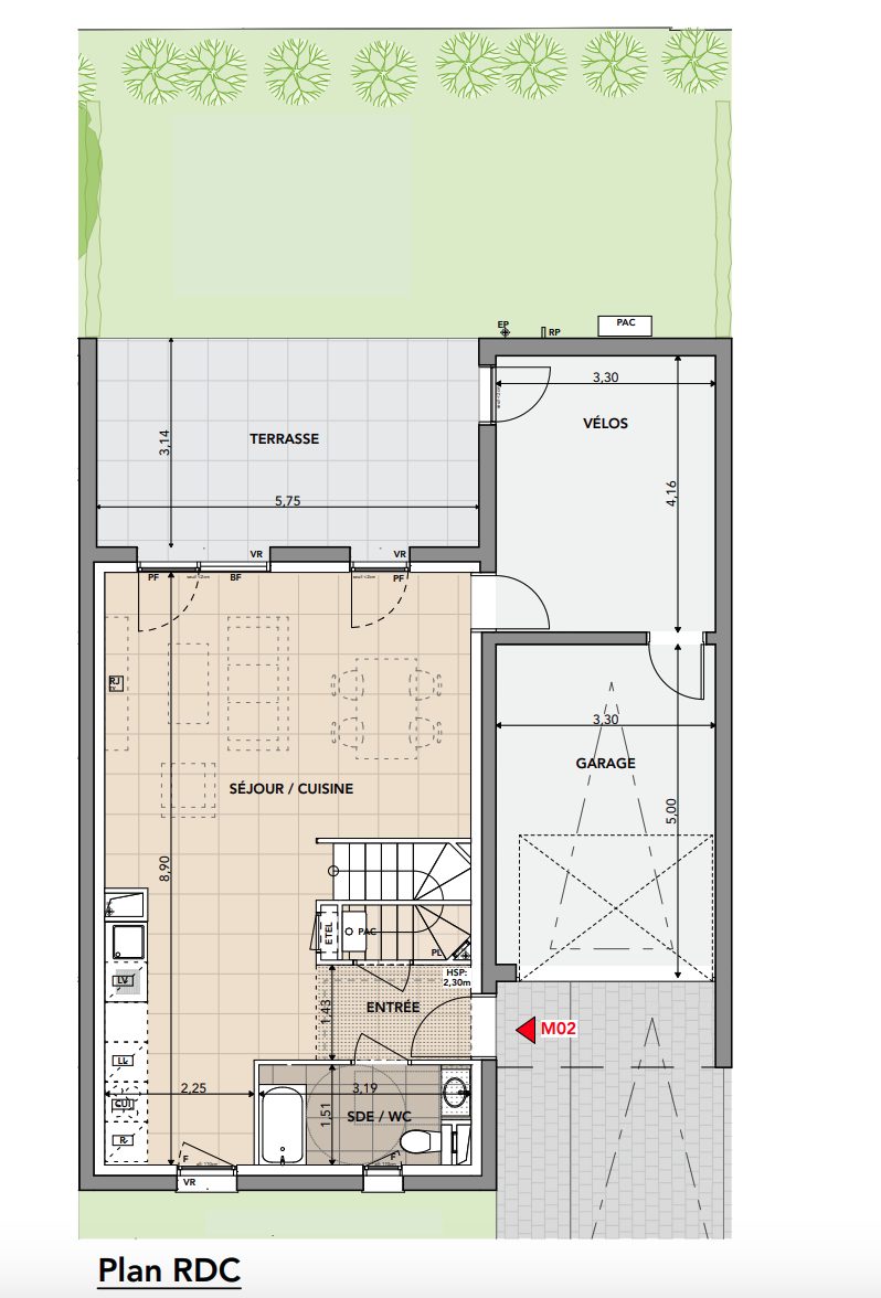
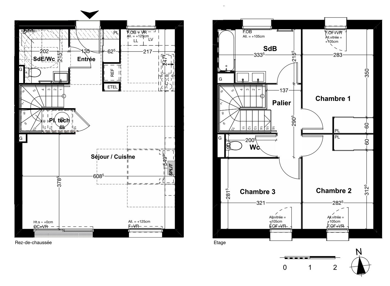
C'est ici que vous découvrirez votre nouvelle maison clés en main, sans aucun travaux à prévoir, qui respecte les normes RT2012, et très bien équipée avec notemment des menuiseries aluminium, la climatisation réversible, des panneaux solaires en autoconsommation Avec un volumineux jardin exposé sud, cette maison se compose d'une entrée avec toilette indépendant, et placard, d'une magnifique pièce de vie de plus de 30m2 largement ouverte sur le jardin par deux grandes baies vitrées et prolongée d'une terrasse. Juste à coté de la cuisine, vous trouverez un cellier avec rangement et emplacement lave linge. Côté nuit, Vous trouverez deux belles chambres avec placard, une grande suite parentale avec salle d'eau et dressing ainsi qu'une salle de bain et un second wc indépendant.
Un garage attenant de 17m2 avec accès direct à la maison et une seconde place de stationnement complètent le bien.
L'emplacement, le jardin, le garage et les prestations en font un bien très prisé.
UNE MAISON AVEC JARDIN ET GARAGE AU COEUR DE PESSAC - DISPONIBLE IMMEDIATEMENT
Honoraires à la charge du vendeur. Classe énergie A, Classe climat A Montant estimé des dépenses annuelles d'énergie pour un usage standard : entre 520.00 et 710.00 sur les années 2021, 2022 et 2023 (abonnements compris). Les informations sur les risques auxquels ce bien est exposé sont disponibles sur le site Géorisques : georisques.gouv.fr.
107 m²
4 019 €
32 m²
199 m²
4
3
1
1
2 (séparés)
2024
1
1
1
Consommations énergétiques
Logement économe
51
Logement énergivore (kWhEP/m2/an)
Émissions de gaz à effet de serre
Faible émission de GES
1
Forte émission de GES(kgeqCO2/m2/an)
Contact Jean-Guillaume ROCHE
Contacter gratuitement à l'aide du formulaire ci-dessous.