Maison Individuelle avec Jardin et Parkings - Tram
Bruges 33520
0
Honoraires à la charge du vendeur.
DU VOLUME, UN EMPLACEMENT, DU CONFORT, DE LA TRANQUILITÉ
Ce lieux? Un cadre verdoyant, calme et familiale ou vous trouverez la plénitude d'une vie de famille. Imperceptible depuis la route, ce havre de paix cultive la discrétion Passé un élégant porche en pierre de taille, un large ourlet verdoyant préserve la tranquillité des lieux et vous plonge dans l'atmosphère inédite d'un sous-bois où des arbres règnent en maîtres.
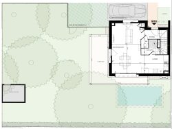
Cette maison individuelle vous propose au RDC une entrée avec placard, WC Indépendant ainsi qu'un cellier. La pièce de vie de 34m2 est largement ouverte sur l'extérieur avec ses deux grandes baies vitrées, permettant ainsi une luminosité optimale dans le séjour. Elle est prolongée d'une grande terrasse, avec son jardin de 263m2 sans vis à vis. Il y a également un abri de jardin ainsi qu'un emplacement prévue pour une piscine. Coté nuit, vous trouverez trois chambres avec placards ainsi qu'une salle de bains double vasques et un deuxième WC.
Deux places de parkings devant la maison en sus obligatoire (25 000) complètent le bien.
Ses prestations, sa localisation ainsi que le cadre en font un bien très prisé.
DU VOLUME, UN EMPLACEMENT, DU CONFORT, DE LA TRANQUILITÉ
Honoraires à la charge du vendeur. DPE en cours. Les informations sur les risques auxquels ce bien est exposé sont disponibles sur le site Géorisques : georisques.gouv.fr.