Maison individuelle de 2011 avec 3 chambres à acheter à BEIG
Beignon 56380
0
Honoraires à la charge de l'acquéreur (Prix hors honoraires : 200000 euros).
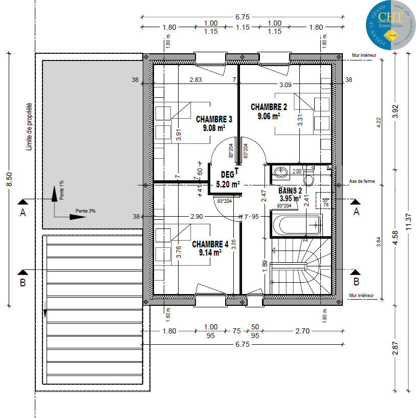
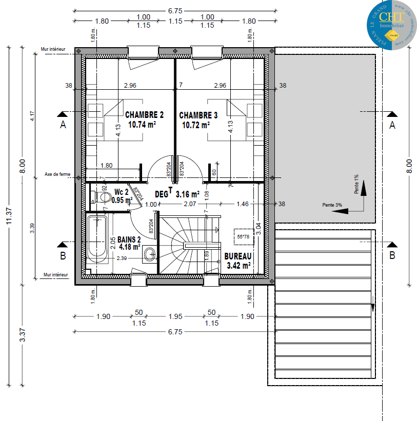
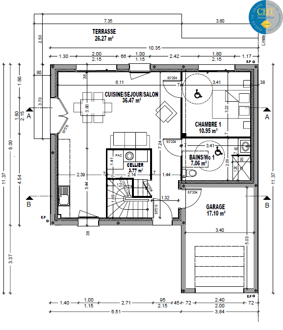
Découvrez cette belle maison indépendante construite en 2011, idéalement située entre le pont du Secret et l'étang de Saint Malo de Beignon. Un cadre paisible à proximité des chemins de randonnée, parfait pour les amoureux de la nature ! Vous découvrirez au rez-de-chaussée une cuisine aménagée et équipée ouverte sur un lumineux salon séjour, WC et une chambre confortable avec rangements L'étage est composé de deux chambres spacieuses et une salle de bains. Possibilité d'une quatrième chambre en aménagent la partie grenier. En dépendance cette propriété offre une garage avec espace buanderie et grenier au dessus et un abri de jardin. La grande terrasse exposée plein sud et ouest est parfaite pour vos moments de détente en extérieur. Le terrain d'environ 1 200 m2, est sans vis à vis et spacieux pour accueillir d'autres aménagements. L'assainissement est aux normes. La commune de Beignon dispose de deux écoles primaires. Le transport scolaire assure la liaison avec les collèges et lycées des alentours, et une ligne de transport en commun facilite les déplacements vers PLELAN LE GRAND, PLOERMEL, GUER, et d'autres villes du secteur. Ne manquez pas cette belle opportunité ! Pour plus de renseignements, contactez rapidement CHT IMMOBILIER au 02 99 06 98 97. Venez découvrir votre future maison ! DPE D. Les informations sur les risques auxquels ce bien est exposé sont disponibles sur le site Géorisques : www.georisques.gouv.fr Vous avez un projet immobilier sur le secteur de Brocéliande ? Pour vendre, acheter ou louer une maison à Plélan le Grand, Guer, Beignon, Saint Malo de Beignon, Porcaro, Augan, Monteneuf, Concoret, Campénéac, Paimpont, Saint Péran, Iffendic, Monterfil, Montfort sur Meu, Saint Thurial, Bovel, Loutehel, Val d'Anast, Maxent, Treffendel, Saint Malon sur Mel, Baulon... contactez nous. Sept conseillers à votre service, trois vitrines à Plélan le grand, Saint Cyr Coëtquidan et Beignon et publication de nos annonces sur plus de 80 sites internet. Plus d'offres sur www.cht-immobilier.com
78.48 m²
2 701 €
43 m²
1200 m²
4
3
1
1
6.00 %
2011
Sud
Ouest
2
1
1
Consommations énergétiques
Logement économe
249
Logement énergivore (kWhEP/m2/an)
Émissions de gaz à effet de serre
Faible émission de GES
8
Forte émission de GES(kgeqCO2/m2/an)
Contact BOULLOT Klemens
Contacter gratuitement à l'aide du formulaire ci-dessous.