Maison Individuelle Non mitoyenne avec Jardin et Parkings - Tram
Bruges 33520
0
Honoraires à la charge du vendeur.
DU VOLUME, UN EMPLACEMENT, DU CONFORT, DE LA TRANQUILLITÉ
Ce lieu ? Un cadre verdoyant, calme et familiale ou vous trouverez la plénitude d'une vie de famille. Imperceptible depuis la route, ce havre de paix cultive la discrétion Passé un élégant porche en pierre de taille, un large ourlet verdoyant préserve la tranquillité des lieux et vous plonge dans l'atmosphère inédite d'un sous-bois où des arbres règnent en maîtres. Le tramway se situe à 2min à pied seulement. Commerces et services à proximité permettent la vie de quartier qui va avec.
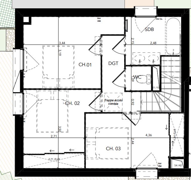
Cette maison individuelle non mitoyenne vous propose au RDC une entrée avec placard, WC Indépendant ainsi qu'un cellier. La pièce de vie de 44m2 est largement ouverte sur l'extérieur avec ses deux grandes baies vitrées, permettant ainsi une luminosité optimale dans le séjour. Elle est prolongée d'une grande terrasse, avec son jardin de 171m2 sans vis à vis. Un emplacement est prévu pour la mise en place d'une piscine. Coté nuit, vous trouverez une première chambre de plain pied avec salle d'eau attenante. À l'étage, trois chambres avec placards ainsi qu'une salle de bains double vasque avec WC.
Son garage de 22m2 est également un superbe atout pour cette maison.
Une place de parking extérieure complète ce bien en SUS (30 000).
Ses prestations (menuiseries aluminium, terrasse bois, pompe à chaleur air/air avec climatisation...), sa localisation ainsi que le cadre en font un bien très prisé.
- Frais de notaire réduits - Garanties - Aucun travaux à prévoir - ...
DU VOLUME, UN EMPLACEMENT, DU CONFORT, DE LA TRANQUILLITÉ
Honoraires à la charge du vendeur. DPE en cours. Les informations sur les risques auxquels ce bien est exposé sont disponibles sur le site Géorisques : georisques.gouv.fr.