Honoraires à la charge de l'acquéreur (Prix hors honoraires : 440000 euros).
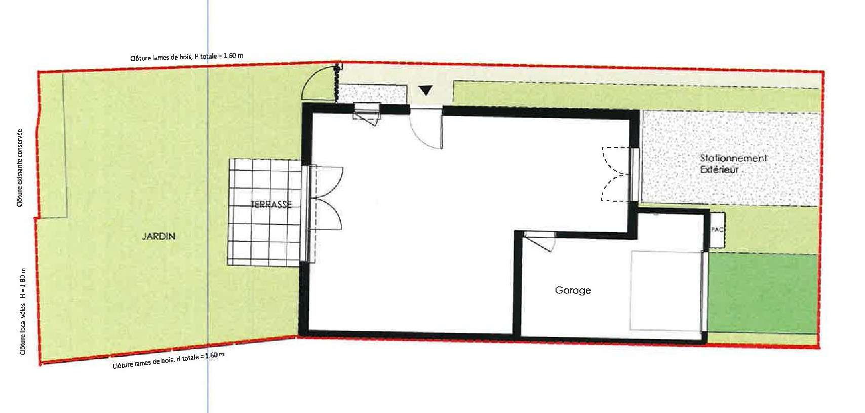
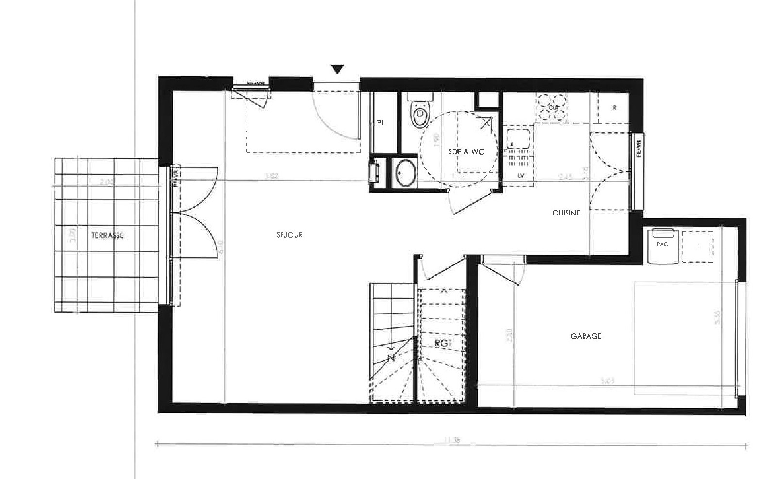
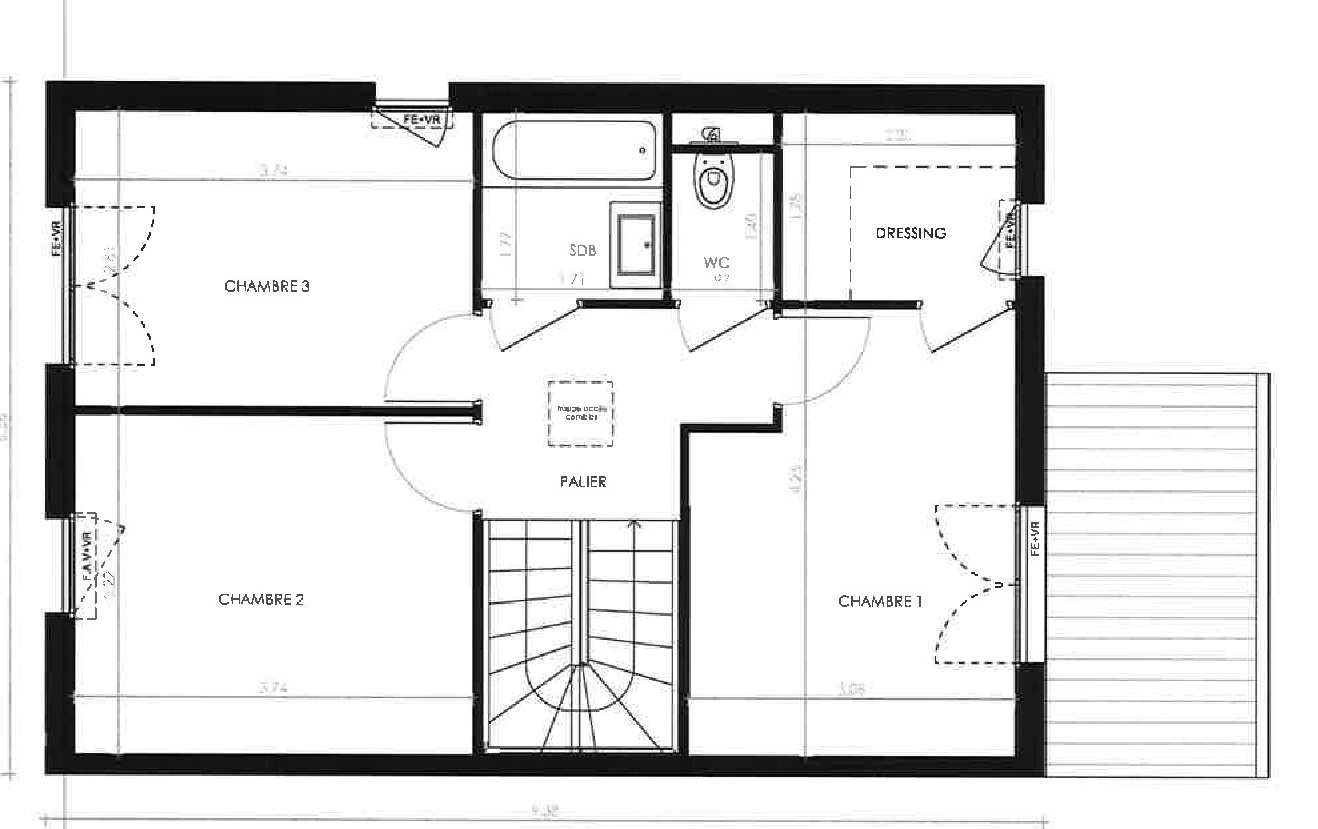
Maison individuelle sur un terrain de plus de 600m² dans un quartier calme de La Richardais. Vous bénéficiez de tout le confort au rez-de-chaussée avec un beau salon séjour chaleureux grâce à son poêle à bois, donnant directement sur la terrasse et le jardin, une cuisine semi ouverte aménagée et équipée, une salle d'eau avec wc ainsi qu'une chambre. A l'étage vous disposerez d'un espace bureau sur le palier, qui dessert 3 belles chambres, un dressing, le wc ainsi que la salle de bains. Les extérieurs sont déjà aménagés avec un cabanon, un bûcher et 2 terrasses dans un cadre arboré. Profitez également de son garage de 25m2
A visiter sans plus attendre.
Honoraires inclus de 4.52% TTC à la charge de l'acquéreur. Prix hors honoraires 440 000 . Classe énergie D, Classe climat B Montant estimé des dépenses annuelles d'énergie pour un usage standard : entre 1599.00 et 2164.00 sur les années 2021, 2022 et 2023 (abonnements compris). Les informations sur les risques auxquels ce bien est exposé sont disponibles sur le site Géorisques : georisques.gouv.fr.
Maison contemporaine
111 m²
4 143 €
611 m²
5
4
1
1
2 (séparés)
4.52 %
2008
Est
Ouest
2
1
1
Oui
Consommations énergétiques
Logement économe
200
Logement énergivore (kWhEP/m2/an)
Émissions de gaz à effet de serre
Faible émission de GES
6
Forte émission de GES(kgeqCO2/m2/an)
Contact Thibault Ollivrin
Contacter gratuitement à l'aide du formulaire ci-dessous.