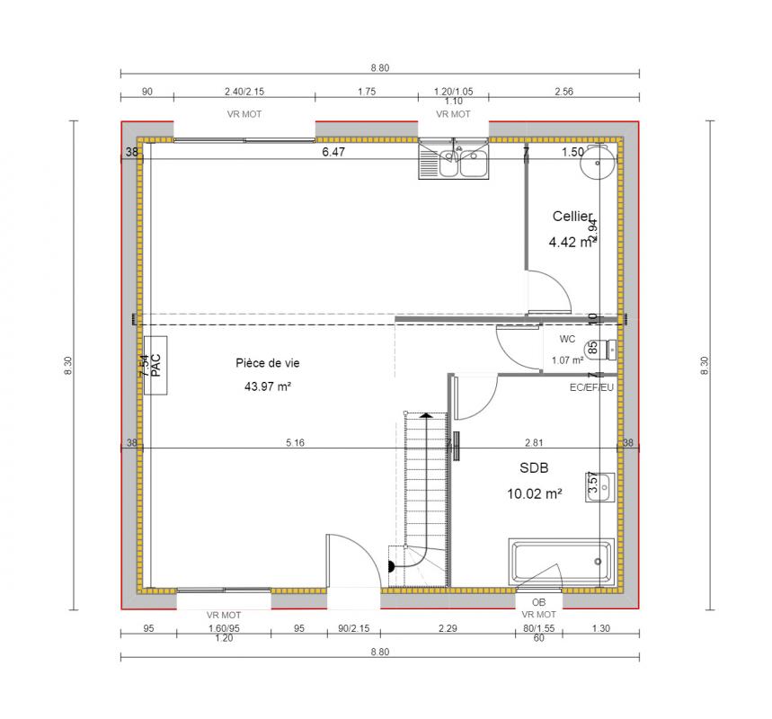
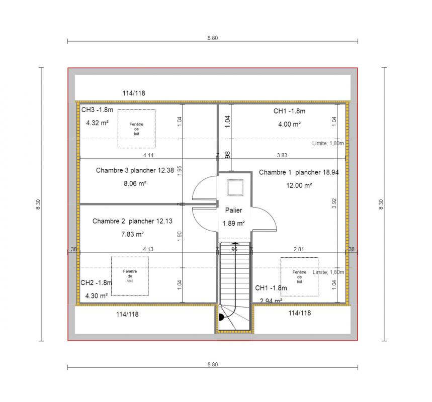
Découvrez cette charmante maison de 90m², construite en 1964, non mitoyenne et dotée de 4 pièces, nichée dans un quartier paisible offrant un cadre de vie serein et équilibré à proximité des commodités urbaines.
Profitez d'une belle terrasse pour des moments de détente en plein air et d'un parking privé pour faciliter vos déplacements. La cave spacieuse s'ajoute à vos commodités. Espaces de vie lumineux et fonctionnels, parfaits pour accueillir votre famille.
Proposée par Laurie Caillaux, cette maison en vente est une opportunité rare pour un cadre de vie mêlant tranquillité et praticité.
Cette annonce référence 315232 vous est présentée par votre agent commercial BSK Immobilier LAURIE CAILLAUX (EI) immatriculé au RSAC de TOURCOING (59200) sous le numéro 83233483300031.
Prix du bien : 175 000,00 €
Les honoraires d'agence sont à la charge du vendeur.
A propos des performances énergétiques :
Date de réalisation du diagnostic énergétique : 06/10/2025
Score DPE : 274 kWhEP/m²/an
Score GES : 9 kgepCO2/m²/an
Montant estimé des dépenses annuelles d'énergie pour un usage standard : entre 1620.00 € et 2240.00 € par an. Prix moyens des énergies indexés sur l'année 2021 (abonnements compris).
Les informations sur les risques auxquels ce bien est exposé sont disponibles sur le site Géorisques : www.georisques.gouv.fr
80 m²
2 188 €
4
2
1
1
1964
Oui
Consommations énergétiques
Logement économe
274
Logement énergivore (kWhEP/m2/an)
Émissions de gaz à effet de serre
Faible émission de GES
9
Forte émission de GES(kgeqCO2/m2/an)
Contact LAURIE CAILLAUX
Contacter gratuitement à l'aide du formulaire ci-dessous.