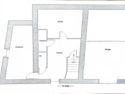
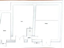
A proximité de Lons le Saunier, dans village avec écoles et nombreux commerces, maison de village en pierre composée de 3 pièces offrant un beau potentiel de rénovation sur 2 niveaux . La grange permet de belles possibilités d'agrandissement. Vous trouverez également une cave. En complément, un jardin non attenant d'environ 890 m² pour potager ou verger.
Prix de vente : 65 000 euros. Honoraires : 12.07% TTC inclus charge acquéreur soit 58 000 euros hors honoraires.
DPE : G 433 - GES : G 12 - Montant estimé des dépenses annuelles d'énergie pour un usage standard entre 750 euros et 1 040 euros indexées aux années 2021, 2022 et 2023 (abonnement compris). Logement à consommation énergétique excessive.
Pour visiter et vous accompagner dans votre projet, contactez Nathalie RAMAUX, au 0677515661 ou, par courriel à n.ramaux@proprietes-privees.com.
Selon l'article L.561.5 du Code Monétaire et Financier, pour l'organisation de la visite, la présentation d'une pièce d'identité vous sera demandée.
Cette présente annonce a été rédigée sous la responsabilité éditoriale de Nathalie RAMAUX agissant sous le statut d'agent commercial immatriculé au RSAC LONS LE SAULNIER 535 148 613 auprès de SAS PROPRIETES PRIVEES, au capital de 44 920 euros, ZAC LE CHÊNE FERRÉ - 44 ALLÉE DES CINQ CONTINENTS 44120 VERTOU; SIRET 487 624 777 00040, RCS Nantes. Carte Professionnelle Transactions sur immeubles et fonds de commerce (T) et Gestion immobilière (G) n°CPI 4401 2016 000 010 388 délivrée par la CCI Nantes - Saint Nazaire. Compte séquestre n°30932508467 BPA SAINT-SEBASTIEN-SUR-LOIRE (44230). Garantie GALIAN-SMABTP - 89 rue de la Boétie, 75008 Paris - n°28137 J pour 2 000 000 euros pour T et 120 000 euros pour G. Assurance responsabilité civile professionnelle par GALIAN-SMABTP n° de police 28137.J
Mandat réf : 429405 - Le professionnel garantit et sécurise votre projet immobilier. (12.07 % honoraires TTC à la charge de l'acquéreur.)
Nathalie RAMAUX (EI) Agent Commercial - Numéro RSAC : LONS LE SAULNIER 535 148 613 - .
Les informations sur les risques auxquels ce bien est exposé sont disponibles sur le site Géorisques : www. georisques. gouv. fr
48 m²
1 354 €
1000 m²
3
1
Oui
Consommations énergétiques
Logement économe
433
Logement énergivore (kWhEP/m2/an)
Émissions de gaz à effet de serre
Faible émission de GES
12
Forte émission de GES(kgeqCO2/m2/an)
Contact Nathalie RAMAUX
Contacter gratuitement à l'aide du formulaire ci-dessous.