Idéal investisseur ou Maison familiale
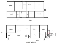
Potentiel Énorme pour cette propriété divisée en 2 logements exposés Sud et comprenant chacun ; au rdc entrée, wc, cuisine, salon-séjour et à l'étage, 3 chambres , wc et salle de bain, et caves respectives. Le tout sur un terrain d'environ 850m². Rénovations à prévoir. Au calme et commerces à pied, à Merlevenez. (6.02 % honoraires TTC à la charge de l'acquéreur.)
Les informations sur les risques auxquels ce bien est exposé sont disponibles sur le site Géorisques : www. georisques. gouv. fr
220 m²
1 687 €
850 m²
14
6
2
2
1960
Oui
Consommations énergétiques
Logement économe
329
Logement énergivore (kWhEP/m2/an)
Émissions de gaz à effet de serre
Faible émission de GES
11
Forte émission de GES(kgeqCO2/m2/an)
Contact PARKIMMOBILIER - PLOUHINEC
Contacter gratuitement à l'aide du formulaire ci-dessous.