Maison de charme rénovée Découvrez cette magnifique maison meublée de 150 m² habitables, entièrement rénovée en 2024, offrant un cadre de vie exceptionnel et une luminosité optimale grâce à son exposition plein sud. Située sur un terrain de 1500 m², cette propriété est un véritable havre de paix, idéal pour les familles ou les amateurs de tranquillité.
Le terrain offre également des atouts considérables : un hangar de 200 m², idéal pour les professionnels ou les passionnés de bricolage, ainsi que deux dépendances : un studio et un T2, offrant des possibilités d'aménagement variées.
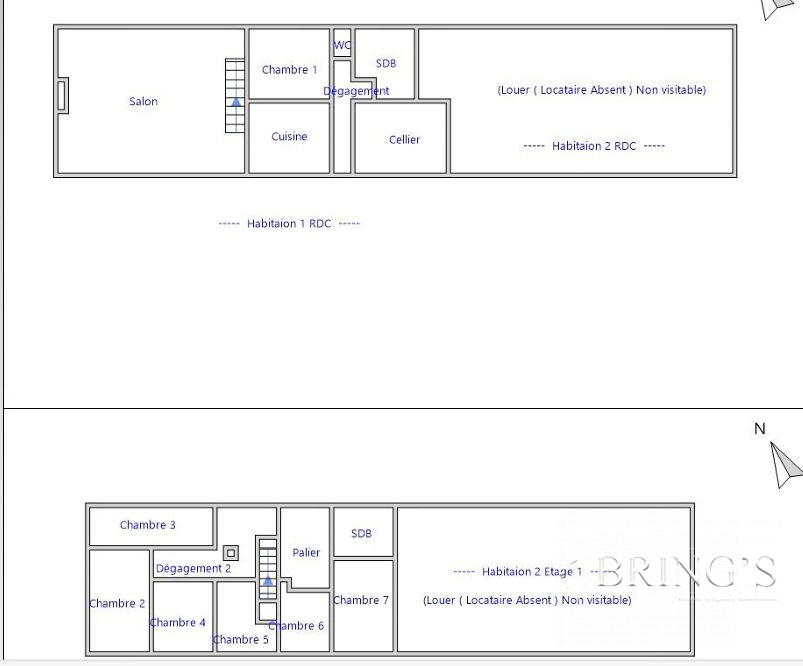
À l'intérieur, vous serez séduit par le vaste séjour de 50 m², parfait pour recevoir vos proches ou profiter de moments de détente en famille. La maison comprend 5 pièces, dont 4 chambres spacieuses et 2 salles de bains modernes, ainsi que 2 WC indépendants pour un confort optimal. La cuisine équipée, ouverte sur le séjour, est un véritable atout pour les passionnés de gastronomie.
Les ouvertures en PVC garantissent une isolation thermique et phonique de qualité, tandis que le chauffage au sol assure une température agréable tout au long de l'année. Le jardin, soigneusement entretenu, est un véritable écrin de verdure où vous pourrez vous ressourcer et profiter des beaux jours.
Imaginez-vous vivre dans cette maison où chaque détail a été pensé pour votre bien-être. Les matinées ensoleillées, les dîners en famille, les moments de détente dans le jardin... Tout est réuni pour faire de cette maison votre nid douillet.
Ne manquez pas cette opportunité unique de vous offrir un cadre de vie exceptionnel. Contactez-nous dès aujourd'hui pour organiser une visite et découvrir par vous-même tout le potentiel de cette magnifique propriété.
Meuble de standing inclus dans le prix ainsi que l'électroménager pour un total de 30 000
PRIX FAI 515 000
Honoraires à la charge du vendeur. DPE en cours. Les informations sur les risques auxquels ce bien est exposé sont disponibles sur le site Géorisques : georisques.gouv.fr.
150 m²
3 400 €
50 m²
1500 m²
5
4
2
2 (séparés)
Oui
Sud
Contact IMMO T PRO
Contacter gratuitement à l'aide du formulaire ci-dessous.