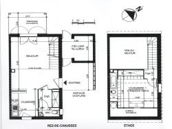
Pour investisseurs ou complément de revenus Encausse-Les-Thermes, située dans une copropriété de 2007, villa mitoyenne de type 2 d'une surface habitable de 47m² environ avec cellier, jardin privatif et abri voiture, actuellement louée. Cette villa comprend en rez-de-chaussée une entrée sur le séjour, une cuisine ouverte et aménagée de meubles, d'une hotte aspirante, d'une plaque de cuisson, un dégagement avec placard, un w.c. séparé. A l'étage : une chambre avec salle de bains et placard. En rez-de-jardin se trouvent un cellier attenant, un abri voiture, une terrasse couverte de 7m² et un jardin privatif d'environ 80 m². Ce bien est actuellement loué 419.00 € mensuels CC dont 30.00€ de charges inclus. Performance Energétique :D / GES : B Estimation des coûts annuels d'énergie du logement entre 720 € et 1 010 € prix moyens des énergies indexés au 01/01/2021 (abonnement compris) Bien soumis au statut juridique de la copropriété, comprenant 22 lots principaux ; le montant annuel moyen de la quote-part du budget prévisionnel correspondant aux dépenses courantes est en moyenne de 640 € dont 360 € récupérables. Pas de procédure en cours.
47 m²
1 170 €
21 m²
80 m²
2
1
1
1
2007
Séparée
Ouest
Nord
Oui
Oui
Consommations énergétiques
Logement économe
241
Logement énergivore (kWhEP/m2/an)
Émissions de gaz à effet de serre
Faible émission de GES
7
Forte émission de GES(kgeqCO2/m2/an)
Contact AAREVA IMMOBILIER
Contacter gratuitement à l'aide du formulaire ci-dessous.