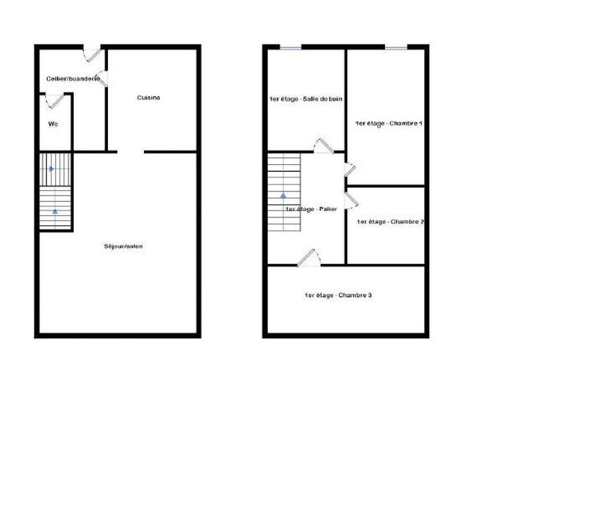
Située dans un village à 20 minutes de Marciac et de Tarbes, cette maison de 75m² à rénover, offre un gros potentiel d'aménagement et d'agencement. Elle se trouve dans un environnement paisible en pleine campagne. Elle se compose en rez de chaussée, d'une pièce de vie, d'une salle de bain et d'un local pouvant être transformé en séjour ou chambre. A l'étage se trouve une chambre spacieuse, une pièce de - 9m2 et un grenier aménageable.
À l'extérieur, cette propriété bénéficie d'un terrain accueillant d'environ 600m2 sans vis à vis et situé sud.
Cette annonce référence 300382 vous est présentée par votre agent commercial BSK Immobilier THIERRY LAPEZE (EI) immatriculé au RSAC de AUCH (32000) sous le numéro 91406996800016.
Prix du bien : 55 000,00 €
Les honoraires d'agence sont à la charge du vendeur.
Non soumis au DPE.
Les informations sur les risques auxquels ce bien est exposé sont disponibles sur le site Géorisques : www.georisques.gouv.fr
75 m²
733 €
600 m²
2
1
1
1
1
1900
Oui
Contact THIERRY LAPEZE
Contacter gratuitement à l'aide du formulaire ci-dessous.