Maison neuve 3 faces 500 m de la plage Livraison 2027
Saint Cyprien Plage 66750
0
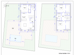
À St Cyprien Plage, à seulement 500 mètres de la mer et à proximité immédiate des commerces, découvrez cette maison neuve de 94 m2 habitables dont la livraison est prévue en 2027. Le rez-de-chaussée propose un séjour avec cuisine ouverte donnant sur les extérieurs, une suite parentale avec salle d'eau, un WC indépendant ainsi qu'un cellier. À l'étage, deux chambres avec dressing, une seconde salle d'eau et un wc séparé complètent l'espace nuit. La maison bénéficie d'un jardin privatif exposé Sud-Est, avec possibilité de réaliser une piscine sur le terrain, ainsi que deux places de stationnement extérieures. Son emplacement privilégié permet de profiter pleinement d'un cadre de vie recherché, avec la plage et les commodités accessibles à pied. Idéale pour une résidence principale, secondaire ou un investissement. Les informations sur les risques auxquels ce bien est exposé sont disponibles sur le site Géorisques : www.georisques.gouv.fr
93 m²
4 516 €
31 m²
219 m²
4
3
1
2
2027
Sud
Est
2
Oui
Oui
Oui (40 lots)
Contact Terre Et Mer Immobilier
Contacter gratuitement à l'aide du formulaire ci-dessous.