CORSE PATRIMOINE IMMOBILIER a le plaisir de vous présenter sur la commune de Sotta, cette maison, en cours d'achèvement des travaux, alliant confort moderne et cadre naturel, le tout à proximité des commerces et commodités. Caractérisques principales :
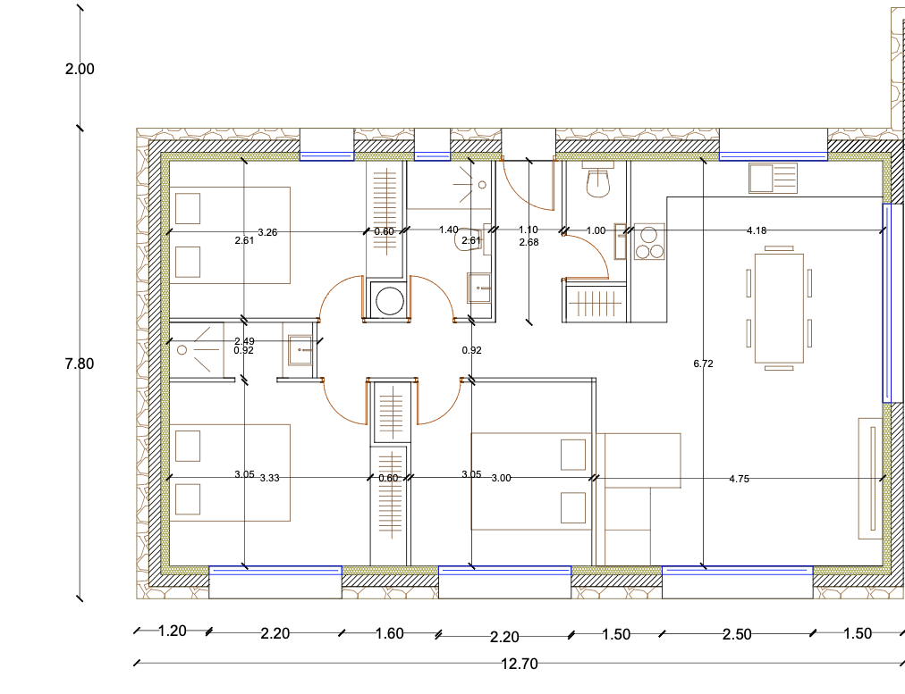
séjour laissant plaçant à l'aménagement d'une cuisine selon vos envies, trois chambres lumineuses avec placards aménagés, salle d'eau et toilettes séparés, parcelle de 1 468 mètres carrés, offrant un bel espace extérieur à aménager à votre gôut, exposition Nord-Est, garantissant luminosité et fraîcheur aux heures d'été.
Atouts confort : climatisation réversible dans toutes les pièces, poêle à bois pour des soirées conviviales, construction conforme aux normes RT2012 assurant performance énergétique et économies. Cette maison est idéale pour profiter de la quiétude de la campagne corse tout en restant proche des services et de l'animation des environs. Informations et visite sur demande. Les informations sur les risques auxquels ce bien est exposé sont disponibles sur le site Géorisques : www.georisques.gouv.fr
81.87 m²
6 352 €
31 m²
1468 m²
4
3
1
1
2024
Est
Nord
1
Oui
Oui
Contact Corse Patrimoine Immobilier
Contacter gratuitement à l'aide du formulaire ci-dessous.