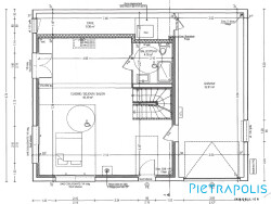
Nouveauté à Péron (secteur Greny) Exclusivité Pietrapolis Ornex Dans un cadre champêtre, idéal pour les amoureux de la nature, et dans un environnement paisible, découvrez cette maison neuve de 142 m² habitables, de type 5, avec cave et garage, édifiée sur une parcelle d'environ 411 m². Elle se compose au rez-de-chaussée : d'une entrée avec placard, d'une spacieuse cuisine ouverte sur une grande pièce de vie lumineuse donnant accès à la terrasse et au jardin, cave d'une salle d'eau, d'un WC indépendant, À l'étage : 4 belles chambres dont une suite parentale avec salle de bains et dressing, d'un cellier/buanderie. une seconde salle d'eau avec WC. Un garage fermé ainsi que deux places de stationnement extérieures complètent ce bien. Prestations de qualité, maison répondant aux normes RT 2012, chauffage au sol, volets roulants motorisés, menuiseries PVC, etc.
Maison livrée hors cuisine, pentures, faïences dans les SDB, parquet dans les chambres .
Ne manquez pas cette opportunité rare dans un secteur recherché, alliant calme, nature et proximité de Genève. Contactez-nous pour une visite !
Les informations sur les risques auxquels ce bien est exposé sont disponibles sur le site Géorisques : www.georisques.gouv.fr
N'hésitez pas à contacter Marcello Guido au 06.12.23.09.95 ou m.guido@pietrapolis.fr ou 04.50.56.50.50 RSAC : 399 405 984
Honoraires à la charge du vendeur. Classe énergie A, Classe climat A Montant estimé des dépenses annuelles d'énergie pour un usage standard : entre 750.00 et 1070.00 sur les années 2021, 2022 et 2023 (abonnements compris). Les informations sur les risques auxquels ce bien est exposé sont disponibles sur le site Géorisques : georisques.gouv.fr.