Maison neuve de 4 pièces, idéalement située à Berck Ville, dans une rue calme et agréable, proche des commerces.
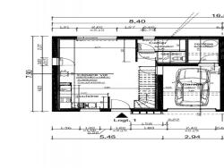
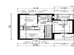
La maison de 75 m² se compose :
· Au rez-de-chaussée : un vaste séjour/cuisine lumineux ouvrant sur un jardin exposé plein sud, un cellier, un WC indépendant.
· À l'étage : trois chambres spacieuses, une salle de bain et un WC. Une des chambres dispose d'un toit-terrasse d'environ 6 m².
· Ce bien possède également : une remise, un garage et une place de parking.
FRAIS DE NOTAIRE RÉDUITS !
----------------------
À 2h30 de Paris et à 1h d'Amiens, Berck-sur-mer , célèbre pour ses vastes étendues de sable fin, est le cadre idéal pour les amateurs de sports nautiques et de détente au bord de la mer. La station est également réputée pour son festival international de cerfs-volants, attirant des visiteurs du monde entier. Les nombreux restaurants, cafés et boutiques le long de la promenade offrent une ambiance conviviale et animée toute l'année.
Elle est idéale pour y vivre tout au long de l'année ou pour les vacances.
Cette annonce référence 239360 vous est présentée par votre agent commercial BSK Immobilier BENJAMIN MARCOURT (EI) immatriculé au RSAC de BOULOGNE-SUR-MER (62200) sous le numéro 85199509200018.
Prix du bien : 282 000,00 €
Les honoraires d'agence sont à la charge du vendeur.
Non soumis au DPE.
Les informations sur les risques auxquels ce bien est exposé sont disponibles sur le site Géorisques : www.georisques.gouv.fr
75 m²
3 760 €
4
3
1
1
Sud
Contact IAD France - Benjamin MARCOURT
Contacter gratuitement à l'aide du formulaire ci-dessous.