Maison neuve 3ch, jardin, garage à vélo et terrasse privativ
Clisson 44190
0
Le projet se compose de plusieurs bâtiments aux teintes chaudes respirant le Sud. La placette centrale entourée de commerces, le cinéma et la médiathèque contribuent à la dynamique du quartier. Nous vous proposons des appartements neufs du studio au 4 pièces aux espaces extérieurs généreux ainsi qu'une dizaine de maisons bénéficiant d'un jardin idéalement orienté SudOuest et, pour certaines, d'un garage fermé. Bénéficiez de tout le confort du neuf : matériaux et prestations modernes et de qualité, balcons, terrasses ou rez-de-jardin bien exposés, stationnements en sous-sol, performances énergétiques et acoustiques à la norme RE2020, Label biosourcé et garanties jusqu'à 10 ans après l'achat !
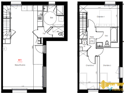
91.63 m²
3 372 €
40 m²
4
3
1
1
2
01/01/2026
2024
Sud
Ouest
1
1
Contact GAUDIN
Contacter gratuitement à l'aide du formulaire ci-dessous.