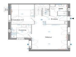
LE VAUDOUE Coeur de village A venir programme NEUF ¨LE CLOS DE L'ERMITAGE¨ livré 4ème trimestre 2027 L'achat est réservé aux ménages qui respectent les plafonds de ressources PLI Accession de la zone ¨B¨ /nous consulter/ Ensemble de 2 longères qui comprennent chacune 2 habitations de 5 pièces Prix à partir de 304 000 TTC et FAI Les habitations seront entièrement terminées, jardins clôturés et engazonnés CLASSE ENERGIE A FRAIS DE NOTAIRE REDUITS /2 à 3% / Maison ¨C 02¨ bénéficie au rez de chaussée une entrée Salon- séjour , cuisine indépendante à aménager Une chambre et une salle de bains avec WC A l 'étage pallier desservant 3 chambres Une salle de bains et un WC indépendant Fenêtres double vitrages PVC avec volets Chauffage par la pompe à chaleur Jardin devant et derrière de 115,25 m² au total 2 places de stationnement RESERVATIONS POSSIBLES DES MAINTENANT ! Contactez nous pour devenir propriétaire dans un endroit privilégié ! TEREZA 0686352212 Agence Valdéenne
Honoraires à la charge du vendeur. DPE vierge. Les informations sur les risques auxquels ce bien est exposé sont disponibles sur le site Géorisques : georisques.gouv.fr.
Maison traditionnelle
98.42 m²
3 089 €
23 m²
115 m²
5
3
1
1
2 (séparés)
2027
Est
Ouest
2
Contact Agence Valdeenne
Contacter gratuitement à l'aide du formulaire ci-dessous.