A vendre Maison neuve prochainement en construction, de 83m² habitable + garage indépendant et terrain, disponible en fin d'année 2025. Possibilité de visiter une maison témoin (+/-20km)
Située proche du centre de Chasseneuil permettant d'aller aux commerces et services à pieds. En recul des voies passantes, sur un terrain calme et sécurisé! Localisation idéale si vous souhaitez habiter proche des commerces et services, avec peu d'entretien. Et de plain pied.
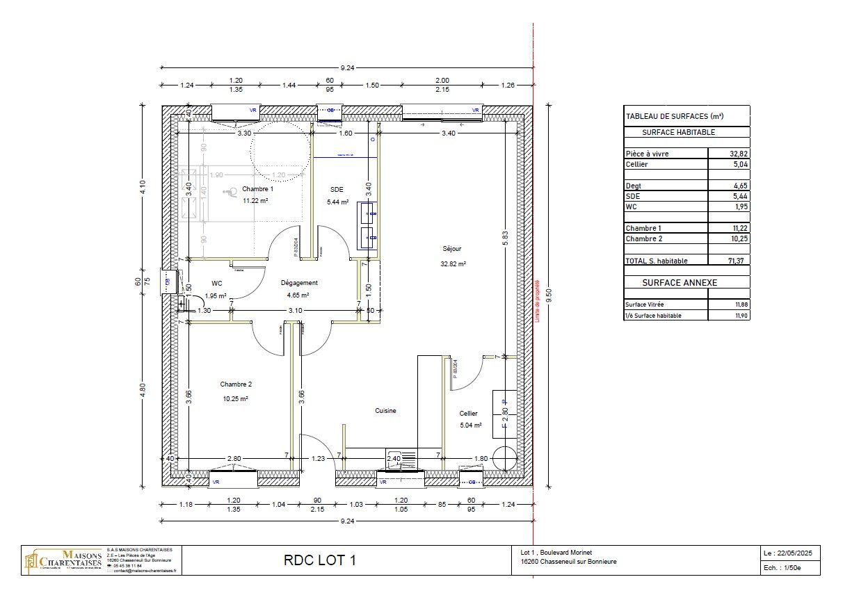
La maison est livrée clef en main (hors cuisine). Elle fait 83m² comporte 3 chambres, une salle d'eau équipée, un WC indépendant, un cellier, beau séjour lumineux avec cuisine ouverte. Un garage Garage indépendant déjà existant. La maison est adaptée aux normes d'accessibilité PMR. Isolation, et étanchéité répondant à la dernière norme RE2020. Chauffage avec pompe à chaleur et split de climatisation chaud/froid. Carrelage, peinture, aménagement extérieur, raccordements réseaux, terrain, taxes, etc.. TOUT COMPRIS DANS LE PRIX. Paiement du prix intégralement à la fin après réception des travaux.
Eligible PTZ. Frais de notaire réduit à 3%. Exonération de Taxe Foncière pendant 2 ans. Pour plus d'informations merci de nous contacter par téléphone ou mail. Photos non contractuelles.
Honoraires à la charge du vendeur. Classe énergie A, Classe climat A Montant moyen estimé des dépenses annuelles d'énergie pour un usage standard, établi à partir des prix de l'énergie de l'année 2024 : entre 720.00 et 855.00 . Les informations sur les risques auxquels ce bien est exposé sont disponibles sur le site Géorisques : georisques.gouv.fr.
82.5 m²
2 121 €
35 m²
430 m²
4
3
1
1 (séparé)
28/11/2025
2025
Sud
Nord
2
1
1
Consommations énergétiques
Logement économe
55
Logement énergivore (kWhEP/m2/an)
Émissions de gaz à effet de serre
Faible émission de GES
1
Forte émission de GES(kgeqCO2/m2/an)
Contact Maisons Charentaises
Contacter gratuitement à l'aide du formulaire ci-dessous.