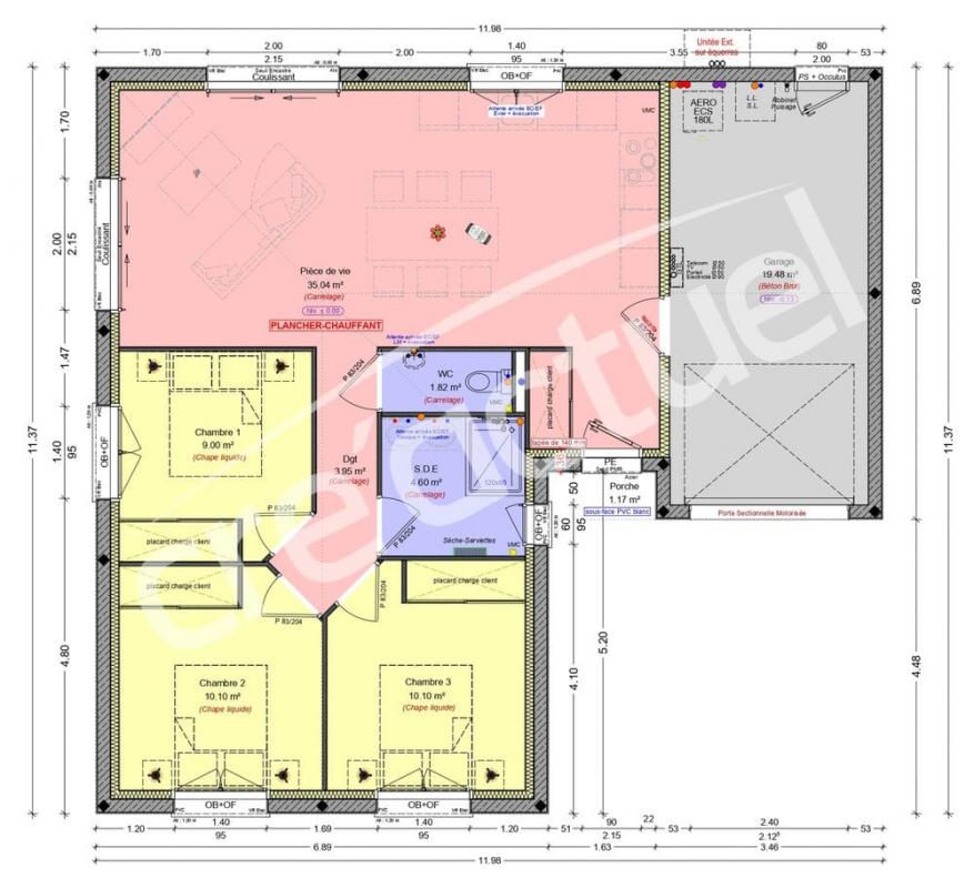
Devenez propriétaire de cette maison confortable de 90 m2 composée d'une belle pièce de vie lumineuse de 35 m2 et de 4 chambres . Sur un terrain de 468 m2 situé sur la Commune de LANVOLLON, proche du centre et des commerces, ce projet de maison contemporaine saura vous séduire. Rencontrons-nous !
Permis de construire prêt à déposer. Prix clé en main tous frais inclus (Frais de notaire, bornage, viabilisation et raccordements, assurance dommage ouvrage) à partir de 259 100 € TTC FRAIS D'AGENCE INCLUS. Disponibilité sous réserve de notre partenaire foncier. Prix susceptible d'évoluer (source tarif 2025) hors adaptation au sol.
Pour votre projet, faites confiance à Cre'Actuel, créateur et constructeur de maisons individuelles.
"Visuels non contractuels. Maison conforme à la règlementation RE 2020 sous réserve de l'implantation et de l'exposition du projet de construction sur le terrain."
90 m²
2 879 €
468 m²
5
4
1
1
Consommations énergétiques
Logement économe
50
Logement énergivore (kWhEP/m2/an)
Contact AVL 2 / MAISON CRE'ACTUEL
Contacter gratuitement à l'aide du formulaire ci-dessous.