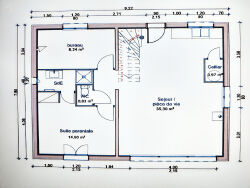
Idéalement situé en centre ville de Trets, dans un environnement calme et très recherché, à 2 pas du centre ville, 2 minutes à pieds école primaire et 5 minutes du Collège. Maison neuve, de 90 m2 comprenant au rdc une pièce de vie de 36 m2, un bureau/cellier et une chambre parentale avec sa salle d'eau, toilettes. A l'étage 2 chambres avec une salle d'eau. Prestations RE2020 fondation 50/50 avec vide sanitaire, construction Biobric, escalier béton, menuiserie alu et pvc, carrelage 60x60, sanitaire et robinetterie Cédéo, climatisation 1 bisplit, chauffe eau thermodynamique, peinture, cuisine équipée. Inclus dans le prix : Terrain + travaux préparatoires frais de notaire assurance dom divers taxes (TLE / TREE) branchements extérieurs En bref une maison contemporaine et confortable et un projet modulable gérer de A à Z par ALTHEA, un constructeur régional au sérieux et à l'expertise reconnue. Une opportunité rare sur le secteur ! Un projet idéal pour primo-accédants sur un budget inférieur à 400 000 euros Prix de vente: 389 000 Euros Honoraires agence charge vendeur inclus. RCS 814 576 997 Aix en Provence AIXTY Immobilier votre partenaire Humain et Innovant sur la Vallée de l'Arc, n'hésitez pas à nous contacter pour votre projet ou pour l'expertise de votre bien immobilier.