L'agence 'MON BIEN A LA MER', spécialiste de l'immobilier neuf sur les côtes Bretonnes, vous présente :
Nouvelle résidence à 5 min à pied des commerces et 5 min en vélo du Port de Paimpol. Normes RE2020, Frais de notaire réduits, Livraison fin 2027.
Chauffage par Pompe à Chaleur, volets roulants électriques, prestations et plans intérieurs personnalisables : ces maisons sont livrées terminées (sauf cuisine) : peintures, salle de bains, jardin engazonné et clôturé, etc
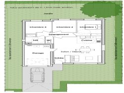
Cette maison de plain pied sur un terrain de 351m2 vous offre : - Séjour/entrée 34m2 - 3 chambres 12,67-9,49-9,86m2 - wc séparés - salle d'eau douche à l'italienne meuble vasque sèche serviette - garage accolé communiquant avec la maison - stationnement extérieur - jardin clos
Plans personnalisables.
Nous Consulter
Honoraires à la charge du vendeur. Non soumis au DPE. Les informations sur les risques auxquels ce bien est exposé sont disponibles sur le site Géorisques : georisques.gouv.fr.
Votre conseiller MON BIEN A LA MER : Gérant - .fr MON BIEN A LA MER Carte T CPI 2201 2018 000 025 040 RCP ACM IARD B1 7025278
85.68 m²
4 377 €
34 m²
341 m²
4
3
1
1
1 (séparé)
2
Oui
Contact mon bien à la mer
Contacter gratuitement à l'aide du formulaire ci-dessous.