Honoraires à la charge de l'acquéreur (Prix hors honoraires : 580000 euros).
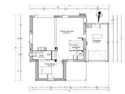
Découvrez cette maison neuve mitoyenne d'un côté, idéalement située en plein coeur de Lancieux, à seulement quelques minutes des plages et des commerces.D'une surface habitable d'environ 118 m² pour un terrain d'environ 398 m², elle sera livrée entièrement terminée, incluant : Cuisine aménagée et équipée, Carrelage au rez-de-chaussée, Parquet à l'étage. La maison offre une pièce de vie lumineuse d'environ 50 m², ouvrant sur le jardin exposé plein Sud.
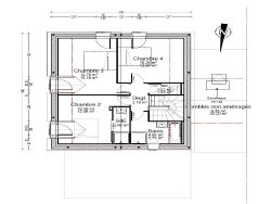
Elle dispose de 4 chambres, dont : 1 suite parentale au rez-de-chaussée avec salle d'eau, 1 seconde suite à l'étage avec salle d'eau, ainsi qu'une salle de bains supplémentaire au premier étage. Pour compléter l'ensemble, vous bénéficierez : d'un grand garage (environ 21 m²), d'un chauffage par pompe à chaleur, de menuiseries aluminium double vitrage.
Honoraires inclus de 4.31% TTC à la charge de l'acquéreur. Prix hors honoraires 580 000 . Non soumis au DPE. Les informations sur les risques auxquels ce bien est exposé sont disponibles sur le site Géorisques : georisques.gouv.fr.
118 m²
5 127 €
50 m²
398 m²
5
4
1
2
2 (séparés)
4.31 %
2025
Sud
2
1
Contact Bord de Mer Immobilier
Contacter gratuitement à l'aide du formulaire ci-dessous.