Maison neuve VEFA 3 chambres avec jardin ANGLET 5 CANTONS
Anglet 64600
0
Honoraires à la charge de l'acquéreur (Prix hors honoraires : 780952 euros).
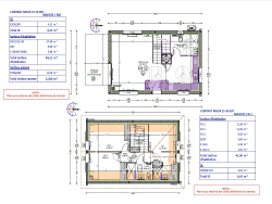
À deux pas des Halles des Cinq Cantons (500m), dans un secteur recherché d'Anglet, découvrez cette maison neuve de 87 m2 en VEFA (vente en l'état futur d'achèvement) . Vous profiterez au rez-de-chaussée d'une vaste pièce de vie lumineuse avec possibilité d'installer une cuisine ouverte, donnant accès à une terrasse et un jardin privatif. WC invité au rez-de-chaussée. A l'étage trois chambres dont une suite parentale, une salle d'eau supplémentaire et un WC séparé. La maison est édifiée sur une parcelle de 255 m2 et dispose de deux places de parking privatives. Bénéficiez des avantages d'une construction neuve en VEFA : dernières normes de construction, garanties constructeur et personnalisation possible selon vos envies. Une opportunité rare pour vivre dans un cadre moderne, confortable et sécurisé. Emplacement idéal: proche de toutes commodités, pistes cyclables allant à la plage (-10 mn à vélo), grands axes et ligne de bus 5 en face allant de Bayonne à Biarritz. Honoraires charge acquéreur de 5% inclus soit un prix net vendeur de 820 000EUR FAI. Les informations sur les risques auxquels ce bien est exposé sont disponibles sur le site Géorisques.
87 m²
9 425 €
36 m²
255 m²
4
3
2
3
5.00 %
2
1
Contact VILLENEUVE
Contacter gratuitement à l'aide du formulaire ci-dessous.