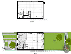
**L'AGENCE DES 3 TERRITOIRES** vous propose un bien rare et exceptionnel : Une maison individuelle neuve à Vincennes avec jardin et stationnement. Dans une rue semi piétonne calme et intimiste, nous vous présentons en VEFA cette belle maison de 234m² au sol, 175m² habitables érigée en R+2 sur une parcelle de 188m². Composée de 7 pièces principales à savoir, entrée, séjour double de 50m² traversant Est-Ouest avec cuisine semi US, 5 chambres dont suite parentale, 2 salles d'eau, 2 salles de bains, 3 wc, sous-sol total de 60m², buanderie, jardin devant et derrière de plain pied et stationnement. Norme HQE, garantie décennale, pompe à chaleur, matériaux de qualité et 'FRAIS DE NOTAIRE' REDUITS (100.000 d'économie). Livraison avril 2026. Ne manquez pas cette opportunité.
Honoraires à la charge du vendeur. Classe énergie B, Classe climat B Montant estimé des dépenses annuelles d'énergie pour un usage standard : entre 500.00 et 1000.00 sur les années 2021, 2022 et 2023 (abonnements compris). Les informations sur les risques auxquels ce bien est exposé sont disponibles sur le site Géorisques : georisques.gouv.fr.
175 m²
9 429 €
50 m²
188 m²
7
5
2
2
3 (séparés)
01/04/2026
2026
Est
Ouest
1
Consommations énergétiques
Logement économe
45
Logement énergivore (kWhEP/m2/an)
Émissions de gaz à effet de serre
Faible émission de GES
9
Forte émission de GES(kgeqCO2/m2/an)
Contact L'AGENCE DES TROIS TERRITOIRES
Contacter gratuitement à l'aide du formulaire ci-dessous.