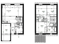
au coeur de Niévroz, à 7 minutes à pied de la Mairie, La résidence profite d'un emplacement privilégié, calme et résidentiel. Nichée dans un cadre verdoyant, llle offre la sérénité d'un quartier paisible tout en restant proche des commodités du quotidien. je vous propose à la vente cette ravissante maison de 90m² qui saura vous séduire par sa situation. En bas, vous trouverez, une entrée, un séjour avec sa cuisine américaine donnant sur un beau jardin de 150m² , une buanderie et un wc indépendant. A l'étage, une salle de bains, une salle d'eau, trois chambres ainsi qu'un WC indépendant. La maison bénéficie d'un garage et d'une place de parking. Bâtiment basse consommation Contactez Grégory pour plus d'informations au O6.69.26.64.26 Visuel non contractuel Copropriété de 36 lots - dont 36 lots habitation. Charges annuelles : 250 euros.