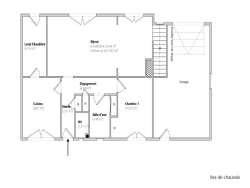
L'Agence de l'Empereur vous présente cette agréable maison non mitoyenne de plus de 104 m2 habitables (125 m2 au sol, hors garage), construite en 1960 et surélevée en 1990 sur une parcelle de 444 m2. Située dans un environnement très calme, en retrait de plusieurs dizaines de mètres d'une petite rue résidentielle, à 10 minutes du centre-ville et à seulement 12 minutes des nombreux commerces de l'éco-quartier de l'Arsenal, en plein essor, et de la future gare de la ligne 15. Elle se compose au rez-de-chaussée : une entrée avec placard, un séjour de 25,5 m2 (pouvant être facilement agrandi de 6 m2), orientée Sud-Est, donnant de plain-pied sur le jardin, une cuisine séparée, une chambre, une salle d'eau et des toilettes séparées. Au premier étage : un dégagement, trois chambres de plus de 11 m2, un bureau, une salle de bains et des toilettes séparées. Possibilité d'aménager le grenier, accessible directement depuis le dégagement, créant ainsi une 5e chambre d'environ 15 m2. Un garage et possibilité de stationner plusieurs voitures sur la parcelle. Un jardin propice aux jeux des enfants et aux moments de convivialité. Rénovation complète à prévoir. Chauffage et production d'eau chaude par chaudière gaz ELM Leblanc. Taxe foncière : 860 euros. Visite en vidéo 4K : https://www.youtube.com/watch?v=EWFPk-t0Ulc Les informations sur les risques auxquels ce bien est exposé sont disponibles sur le site Géorisques : www.georisques.gouv.fr
120 m²
6 167 €
25 m²
5
4
1
1
2
1959
1
Consommations énergétiques
Logement économe
194
Logement énergivore (kWhEP/m2/an)
Émissions de gaz à effet de serre
Faible émission de GES
42
Forte émission de GES(kgeqCO2/m2/an)
Contact Agence De L'empereur
Contacter gratuitement à l'aide du formulaire ci-dessous.