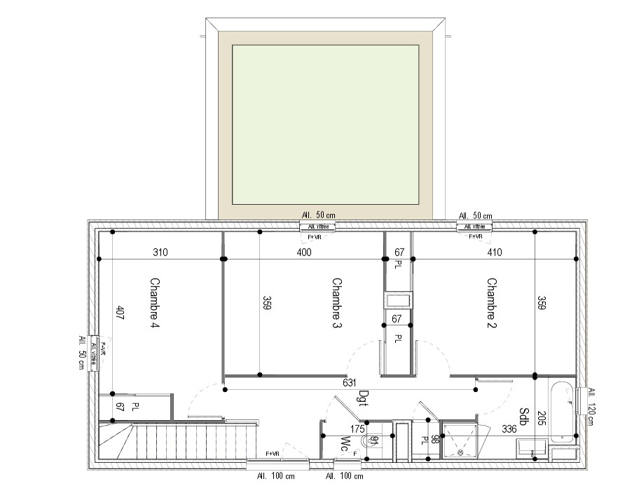
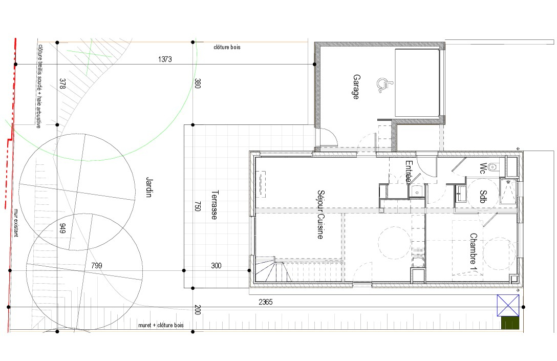
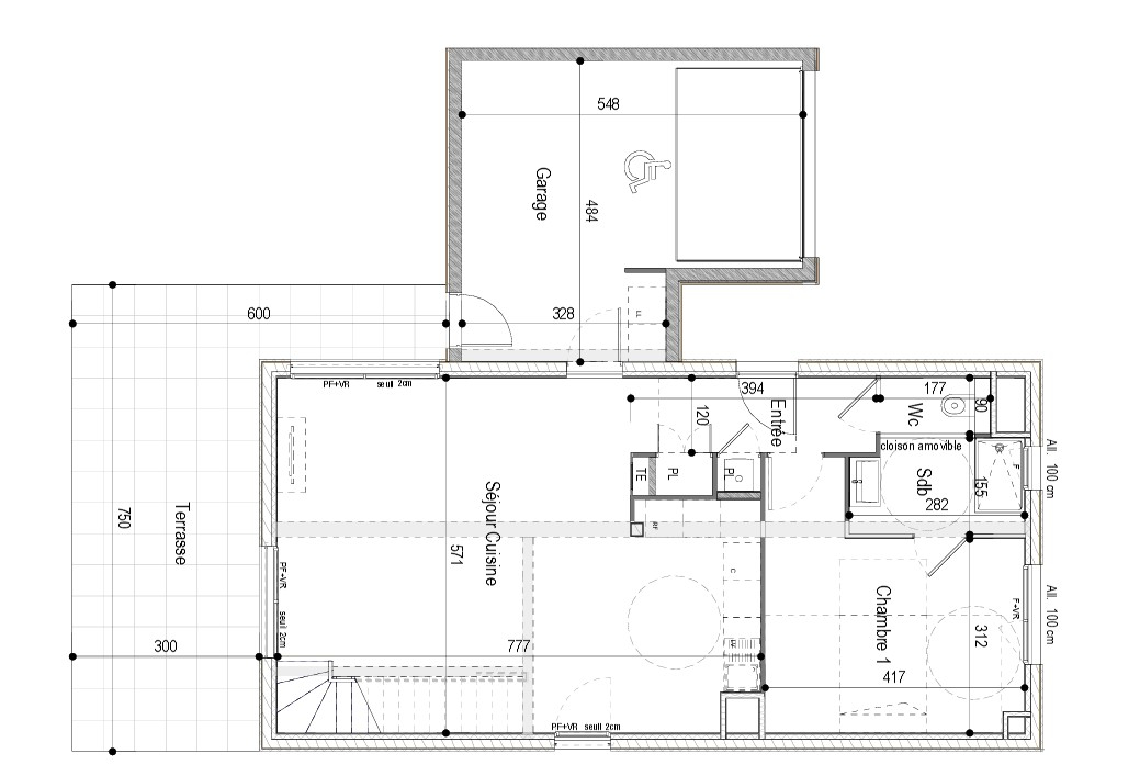
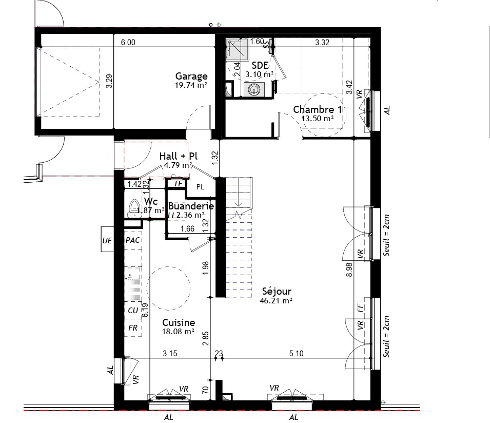
Sur les hauteurs de Crépieux, dans un environnement privilégié et particulièrement recherché, cette élégante maison de 147m², à ossature bois de style chalet, bénéficie d'une situation exceptionnelle offrant une vue panoramique et imprenable sur la plaine de l'Ain et la ville de Lyon. Entièrement rénovée avec des matériaux de qualité, elle a été repensée avec beaucoup de goût afin d'allier confort contemporain et authenticité, tout en préservant le cachet et le charme originels de la bâtisse. Parfaitement isolée et soigneusement entretenue, elle offre un cadre de vie aussi chaleureux que paisible. La maison développe sept pièces principales réparties sur trois niveaux. Dès l'entrée, le rez-de-chaussée accueille un hall fonctionnel desservant un bureau pouvant également faire office de chambre équipé de toilettes, ainsi qu'un atelier, un garage et une cave qui complètent idéalement ce niveau. Au premier étage se dévoile une superbe pièce de vie, particulièrement lumineuse grâce à sa triple exposition. La cuisine, entièrement équipée, s'ouvre harmonieusement sur le séjour et le salon, créant un espace convivial et chaleureux sublimé par un poêle à bois. Cet espace de vie bénéficie d'un accès direct au jardin, invitant à profiter pleinement de l'extérieur et de la vue. Ce niveau comprend également deux chambres confortables, une salle d'eau et un WC indépendant. Le deuxième étage propose deux belles chambres climatisées ainsi qu'une salle d'eau avec WC. Ce niveau constitue un espace plus indépendant, parfaitement adapté pour les enfants, les invités ou pour créer une véritable suite privative. A l'extérieur, la propriété se distingue par son terrain de 1 500 m² aménagé en paliers, offrant plusieurs espaces de vie. Une terrasse panoramique permet de profiter pleinement de la vue, tandis que la piscine, également tournée vers le paysage, invite à la détente dans un cadre exceptionnel. Les espaces verts, les arbres et la végétation environnante créent une atmosphère paisible et verdoyante, idéale pour savourer les couchers de soleil dans un environnement calme et préservé. Véritable havre de paix, cette propriété rare combine nature, tranquillité et panorama remarquable, tout en restant à proximité immédiate de Lyon, de Caluire-et-Cuire et de l'ensemble des commodités. Elle séduira les amateurs de lieux de vie uniques, où charme, confort et emplacement privilégié se conjuguent à la perfection. CLASSE ENERGIE : C / CLASSE CLIMAT : C Prix moyens des énergies indexés sur les années 2021, 2022, 2023 (abonnements compris) : entre 1300 euros et 1850 euros Contact : Loïc - 07 61 09 19 75 Loic Odouard (EI) Agent Commercial - Numéro RSAC : 753 650 721 - Lyon.