MAISON PLAIN-PIED - 3 CHAMBRES - DEPENDANCES - GRAND TERRAIN
Paulx 44270
0
Honoraires à la charge de l'acquéreur (Prix hors honoraires : 200000 euros).
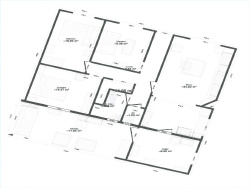
Située sur la commune de Paulx, à seulement 1 km du bourg et de ses commerces et services, découvrez cette agréable maison de plain-pied construite en 1966, offrant environ 95 m2 habitables. Elle se compose d'une agréable pièce de vie d'environ 25 m2 avec cuisine ouverte sur salle à manger/salon, de trois chambres, d'un cellier, d'une salle d'eau, d'un WC indépendant ainsi que d'une véranda d'été, idéale pour profiter des beaux jours. La propriété dispose également de spacieuses dépendances d'environ 72 m2, comprenant deux garages et deux grandes pièces, offrant de nombreuses possibilités : atelier, stockage, espace de bricolage ou projet d'aménagement. L'ensemble est implanté sur un magnifique terrain d'environ 1 780 m2, arboré, bien exposé et agréable à vivre, parfait pour profiter du calme de la campagne tout en restant proche des commodités. La maison est lumineuse, bien entretenue et bénéficie d'équipements confortables :
couverture en tuiles
double vitrage
volets roulants électriques en PVC
chauffage électrique
raccordement au tout-à-l'égout
muret et portail extérieur en PVC
Localisation idéale à environ :
6 km de Machecoul-Saint-Même
22 km de Challans
40 km de Nantes
Taxe foncière 2025 : 497 EUR Un bien offrant calme, espace et potentiel, idéal pour une résidence principale ou un projet de vie au vert. Les informations sur les risques auxquels ce bien est exposé sont disponibles sur le site Géorisques : www.georisques.gouv.fr Date de réalisation du Diagnostic de Performance Energétique ( DPE ) : mars 2026 Consommation énergie primaire : 315 kWh/m2/an. ( Classe : E ) Montant estimé des dépenses annuelles d'énergie pour un usage standard : entre 2 280 EUR et 3 120 EUR par an. Prix moyens des énergies indexés sur les années 2021, 2022, et 2023 (abonnements compris) Pour plus de renseignements, contactez votre conseiller immobilier NOOVIMO : Jean-Louis MEUNIER, portable : 06 68 89 28 00, mail : jlmeunier@noovimo.fr, site : jlmeunier.noovimo.fr, Annonce rédigée par Jean-Louis MEUNIER, agent commercial immobilier, mandataire indépendant inscrit au RSAC de Saint-Nazaire sous le No 481 853 406. Honoraires : 4.50 % TTC de 200 000 EUR ( Prix de vente honoraires exclus ). Soit 209 000 EUR ( honoraires inclus ). Honoraires : 9 000 EUR TTC à la charge de l'acquéreur. Nos honoraires sont consultables sur : www.noovimo.fr - Annonce rédigée et publiée par un Agent Mandataire -
95 m²
2 200 €
1780 m²
6
3
4.50 %
1966
2
Consommations énergétiques
Logement économe
315
Logement énergivore (kWhEP/m2/an)
Émissions de gaz à effet de serre
Faible émission de GES
12
Forte émission de GES(kgeqCO2/m2/an)
Contact MEUNIER
Contacter gratuitement à l'aide du formulaire ci-dessous.