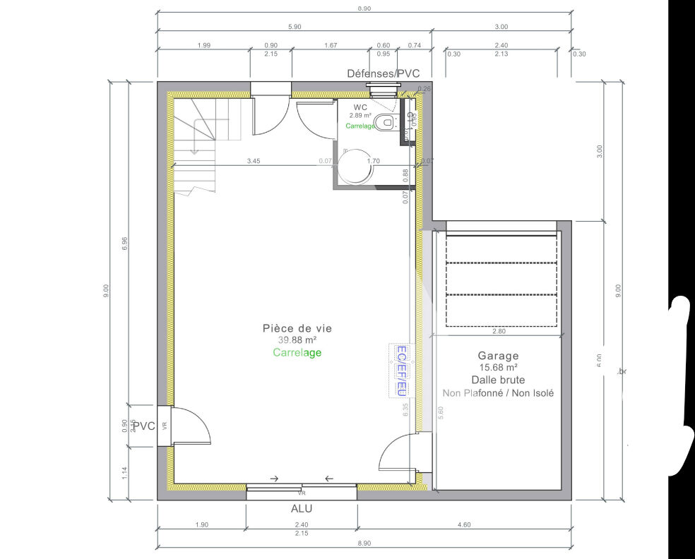
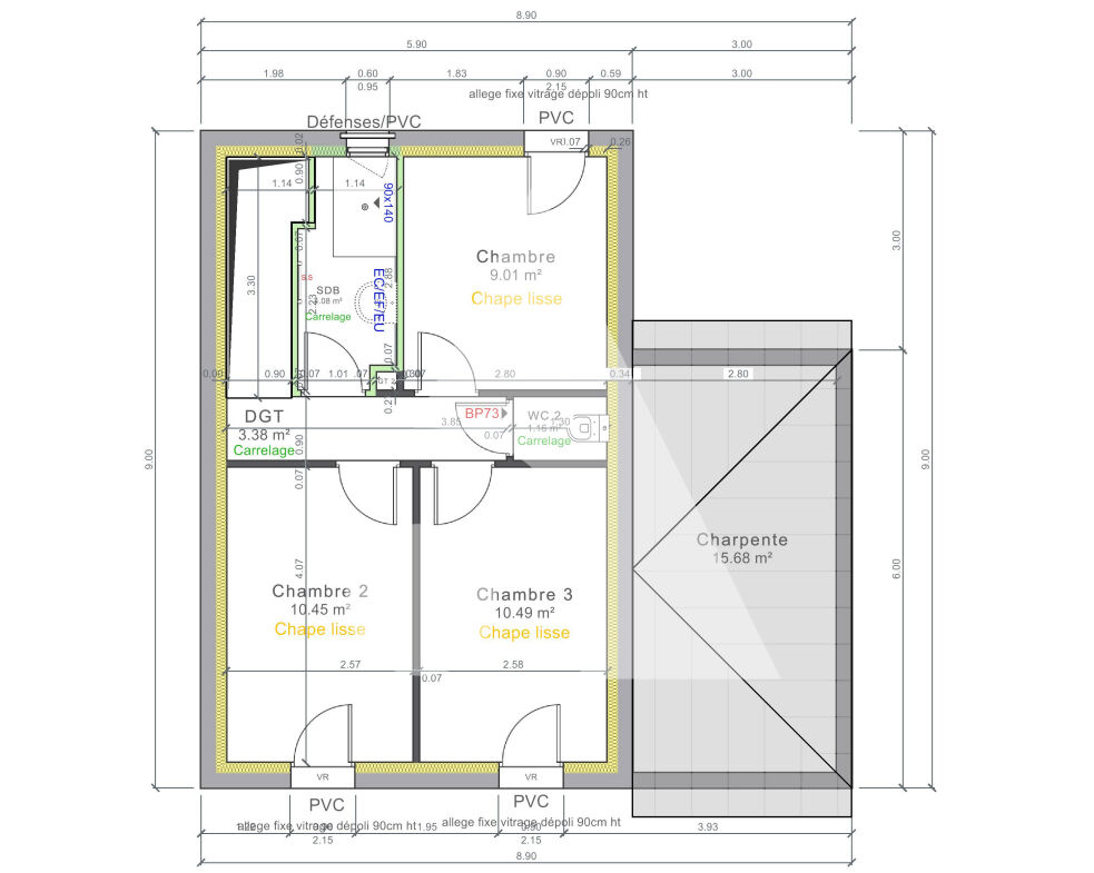
Fabien Della Giustina, Teracyté Immobilier, vous propose EN EXCLUSIVITÉ : Dans le centre du village de Marlieux, à proximité immédiate du ramassage scolaire (10m), de la gare TER (750m), des commerces locaux (à 450m : bar/pizzéria, boulangerie/pâtisserie, restaurant, coiffeur), des écoles primaires et maternelles (600m) et de la micro-crèche (750m), venez découvrir cette charmante maison individuelle de plain-pied, exposée Est/Ouest, construite en 2012 hors lotissement, sur une parcelle engazonnée de 448 m² entièrement clôturée. L'entrée avec placard mural vous invite dans une vaste pièce de vie de 45m² ouvrant sur la terrasse et le jardin et comprend une cuisine ouverte équipée. Le coin nuit propose trois chambres de près de 12m², chacune avec un grand placard mural. la salle de Bains avec baignoire, double vasque, sèche-serviettes bénéficie d'un PUITS DE LUMIÈRE. Le WC est indépendant. Buanderie carrelée avec fenêtre. Garage de 17m². Du point de vue technique : moustiquaires, fenêtres alu et PVC double vitrage avec lame d'argon à isolation renforcée, volet roulant électrique PVC (séjour) + battants bois (vont être repeints), chauffage et eau chaude par POMPE A CHALEUR air/eau, VMC SF Hygro, chenaux en alu moulé, bandeaux de rives et forgets PVC, isolation toiture laine soufflée, tuiles terre cuite, tout-à-l'égout...Taxe foncière : 597 . Electricité : 140 par mois. Le village de Marlieux est en cours de raccordement à la Fibre. A VISITER SANS TARDER !
Le DPE est en cours d'actualisation. Photos supplémentaires sur demande.
Honoraires charge vendeur.
Pour tout renseignement : Fabien DELLA GIUSTINA, agent commercial enregistré au Registre du Commerce et des Société de Bourg-en-Bresse sous le n° 417699865 0686710485 f.dellagiustina@teracyte-immobilier.fr
ESTIMATION ET CONSEIL GRATUITS.
99.22 m²
2 913 €
45 m²
448 m²
4
3
1
1 (séparé)
2012
Est
Ouest
2
1
1
Consommations énergétiques
Logement économe
136
Logement énergivore (kWhEP/m2/an)
Émissions de gaz à effet de serre
Faible émission de GES
6
Forte émission de GES(kgeqCO2/m2/an)
Contact Fabien DELLA GIUSTINA
Contacter gratuitement à l'aide du formulaire ci-dessous.