Maison plain-pied PMR 92m2 - Travaux en cours - La Foret Fouesnant
La Forêt-Fouesnant 29940
0
Honoraires à la charge de l'acquéreur (Prix hors honoraires : 430000 euros).
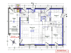
Seulement chez Villadici, située à proximité immédiate du Port et des commerces accessibles à pied, cette maison de plain-pied aux normes PMR est actuellement en cours de construction et sera livrée à l'été 2026. Elle bénéficie de la garantie décennale constructeur. Les suggestions d'aménagement visibles en photo sont non contractuelles. La maison propose une pièce de vie lumineuse avec cuisine ouverte de 41,34 m2, trois chambres, une salle d'eau, un cellier, un dégagement et un wc. Un garage attenant et communiquant complète l'ensemble. Le jardin se situe à l'avant de la maison. Le chauffage est assuré par une pompe à chaleur avec plancher chauffant. Le terrain de 545 m2 sera livré entièrement paysagé. La propriété est desservie par un chemin d'accès en indivision avec le futur voisin mitoyen par le garage. Le quotidien peut se faire aisément à pied : la cale à environ dix minutes, les commerces à treize minutes et le Port à quinze minutes. Les informations sur les risques auxquels ce bien est exposé sont disponibles sur le site Géorisques : https://www.georisques.gouv.fr/ Pour tout renseignement, merci de contacter Thibaud Kempen au 06.07.79.57.38 Agent Commercial Indépendant (E.I) RSAC 523 682 268 (4.53 % honoraires TTC à la charge de l'acquéreur.) THIBAUD KEMPEN (EI) Agent Commercial - Numéro RSAC : 523 682 268 - Quimper.