Une maison en exclusivité avec ses points forts :
-Maison rénovée
-Luminosité
-Plain pied sur sous-sol intégral
-Véranda/Cuisine
-Grande parcelle
-Jolie salle d'eau
-Dépendance/Atelier
-Poêle à bois
Le secteur :
La maison de 101m2 se situe dans un hameau de Orgères-en-Beauce. Entouré de vastes champs agricoles, il offre un cadre de vie calme et paisible, idéal pour les amateurs de nature et de tranquillité. Bien desservi par les routes principales, il bénéficie également de la proximité de villes plus grandes comme Orléans, offrant ainsi un équilibre entre ruralité et accessibilité aux services urbains. C'est un lieu parfait pour ceux qui recherchent un cadre de vie serein tout en restant proche des grandes agglomérations. Vous y trouverez plusieurs commerces pour le quotidien, tels que boulangerie, épicerie, banques et assurances, professionnels de beauté ainsi que cabinet médical et pharmacie. Niveau scolaire, outre le ramassage des cars, vous y trouverez une école primaire, et le collège sera à Patay.
Villes à proximité :
Patay 15mkm, Janville-Artenay 16km, Voves 17km, Bricy 20km, Châteaudun 32km, Saran 35km, Orléans 40km.
Extérieurs et dépendances :
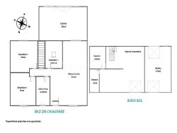
La parcelle entièrement clôturée de près de 1300m2 avec terrasse vous offre une vue sur la nature. Son sous sol intégral sera parfait pour du stockage, ou d'autres possibilités d'aménagement. Le gros plus, un garage ou atelier de 47m2, idéal pour un projet professionnel ou de transformation en habitable.
La maison :
C'est une maison des années 1970, d'une superficie de 100m2 sur sous sol d'environ 70m2. Vous entrez sur la jolie pièce à vivre équipée d'un poêle à bois, ainsi que d'une grande cuisine équipée et aménagée avec espace dinatoire. Vous y trouverez de nombreux rangements et plans de travail. Quant au coin nuit, 3 pièces avec placard dont deux jolies chambres de plus de 10m2, ainsi qu'une troisième qui servirait de bureau, chambre d'amis ou encore pour un enfant. Une jolie salle d'eau avec toilettes complète cet espace.
Côté technique :
Prêt à être raccordé à l'assainissement collectif, menuiseries PVC double vitrage, chauffage bois, sous-sol isolé par le plafond, espace buanderie au sous-sol, ballon thermodynamique.
Visite virtuelle 360° sur demande,
Vidéo de présentation sur ma page YouTube,
J'attends votre appel pour planifier une visite.
Cette annonce référence 266358 vous est présentée par votre agent commercial BSK Immobilier AUDREY ADAM (EIRL) immatriculé au RSAC de ORLEANS (45000) sous le numéro 85088982500020.
Prix du bien : 169 000,00 €
Les honoraires d'agence sont à la charge du vendeur.
A propos des performances énergétiques :
Date de réalisation du diagnostic énergétique : 10/08/2022
Score DPE : 206 kWhEP/m²/an
Score GES : 6 kgepCO2/m²/an
Montant estimé des dépenses annuelles d'énergie pour un usage standard : entre 760.00 € et 1060.00 € par an. Prix moyens des énergies indexés sur l'année 2021 (abonnements compris).
Les informations sur les risques auxquels ce bien est exposé sont disponibles sur le site Géorisques : www.georisques.gouv.fr
101 m²
1 682 €
1300 m²
4
3
1
1970
Oui
Oui
Consommations énergétiques
Logement économe
206
Logement énergivore (kWhEP/m2/an)
Émissions de gaz à effet de serre
Faible émission de GES
6
Forte émission de GES(kgeqCO2/m2/an)
Contact IAD France - Audrey ADAM
Contacter gratuitement à l'aide du formulaire ci-dessous.