Maison plain pied sur terrain de 17 ares à Preuschdorf
Preuschdorf 67250
0
Cette magnifique maison bâtie en 1975 et entièrement rénovée en 2003 est en excellent état. Elle n' attend que vous !
Elle offre de grands espaces lumineux, baignés de la lumière qu' apportent les nombreuses fenêtres et baies vitrées donnant sur deux terrasses,
l' une surplombant la piscine creusée (9mx4m), chauffée par une PAC de marque Thermor.
Les matériaux (carreaux de marbre) et équipements (fibre optique...) sont de qualité.
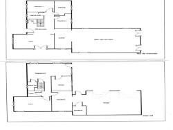
La surface habitable de 165 m2 se décline ainsi :
Entrée, salon spacieux (actuellement salle de billard) donnant sur une première terrasse, grand séjour de 60 m2 avec cheminée situé dans l' extension de 2003 et donnant sur la deuxième terrasse et la piscine, cuisine ouverte équipée (four à pyrolyse, micro-ondes Siemens, plaques de cuisson à induction....), trois chambres à coucher, salle de bain, toilettes séparées.
Le sous-sol d' une surface comparable abrite diverses pièces dont une chaufferie (pompe à chaleur De Dietrich et chaudière au fioul Buderus en relais qui alimentent le chauffage au sol et les radiateurs dans les chambres), une salle d' eau avec toilettes ainsi qu' un garage pour deux voitures.
Le terrain arboré et clos de 17 ares situé dans un quartier calme abrite également dans la grande cour une dépendance pour garer deux voitures supplémentaires et stocker diverses marchandises.
Le très pittoresque village de Preuschdorf compte 1000 habitants. Vous y trouverez un relais de la poste, une esthéticienne, un kinésithérapeute, un dentiste et un coiffeur. Les médecins sont à 2 km (Lampertsloch). La maternelle et le primaire (avec périscolaire) se trouvent à 2 min. à pied de la maison. Le collège est à Woerth avec ramassage, ou à Soultz sous Forêts (bilingue). Les Lycées sont à Wissembourg ou Haguenau.
Que se soit pour y vivre et/ou développer une activité professionnelle, ce bien est une excellente opportunité pour des investisseurs avisés.
Pour plus d? informations ou pour organiser une visite, contactez Jean-Paul Maurice, mandataire indépendant en immobilier, disponible 7j/7.
Les propriétaires souhaitant préserver leur intimité, merci de passer exclusivement par votre agent de proximité.
À bientôt !
Annonce publiée par Jean-Paul Maurice (EI) votre agent commercial en immobilier LF immo à Sessenheim, 67770 immatriculé au RSAC de Strasbourg sous le n°803 806 744 000 14. Consultez nos tarifs sur le site LF immo.
Les informations sur les risques auxquels ce bien est exposé sont disponibles sur le site Géorisques : www.georisques.gouv.fr.
165 m²
3 327 €
1735 m²
6
3
1
1
1978
Américaine
Oui
Oui
Consommations énergétiques
Logement économe
130
Logement énergivore (kWhEP/m2/an)
Émissions de gaz à effet de serre
Faible émission de GES
16
Forte émission de GES(kgeqCO2/m2/an)
Contact Jean-Paul Maurice
Contacter gratuitement à l'aide du formulaire ci-dessous.