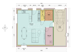
Situé sur les hauteurs de Péron, avec vue Mont Blanc et Jura, dans le très recherché secteur de Logras, cet ensemble terrain + maison de 127 m2 habitables offre une qualité de vie exceptionnelle, avec une architecture moderne. Le permis de construire est purgé de tout recours, garantissant une tranquillité administrative totale. La construction est vendue avec garantie décennale et assurance dommages-ouvrage. Cette propriété propose une vaste pièce de vie de 45 m2, lumineuse et ouverte sur l'extérieur, 3 belles chambres, dont une suite parentale avec salle d'eau privative, une buanderie, un cellier, un garage attenant de 20 m2, ainsi que 3 places de stationnement extérieures Accès rapide à toutes les commodités (Commerces, collège, école, aéroport de Genève à 20 minute, frontière Genevoise (Chancy) à 12 minutes. Iklas ZAMMIT (06.16.50.29.79) est à votre disposition pour vous faire découvrir ce bien. - Annonce rédigée et publiée par un Agent Mandataire -