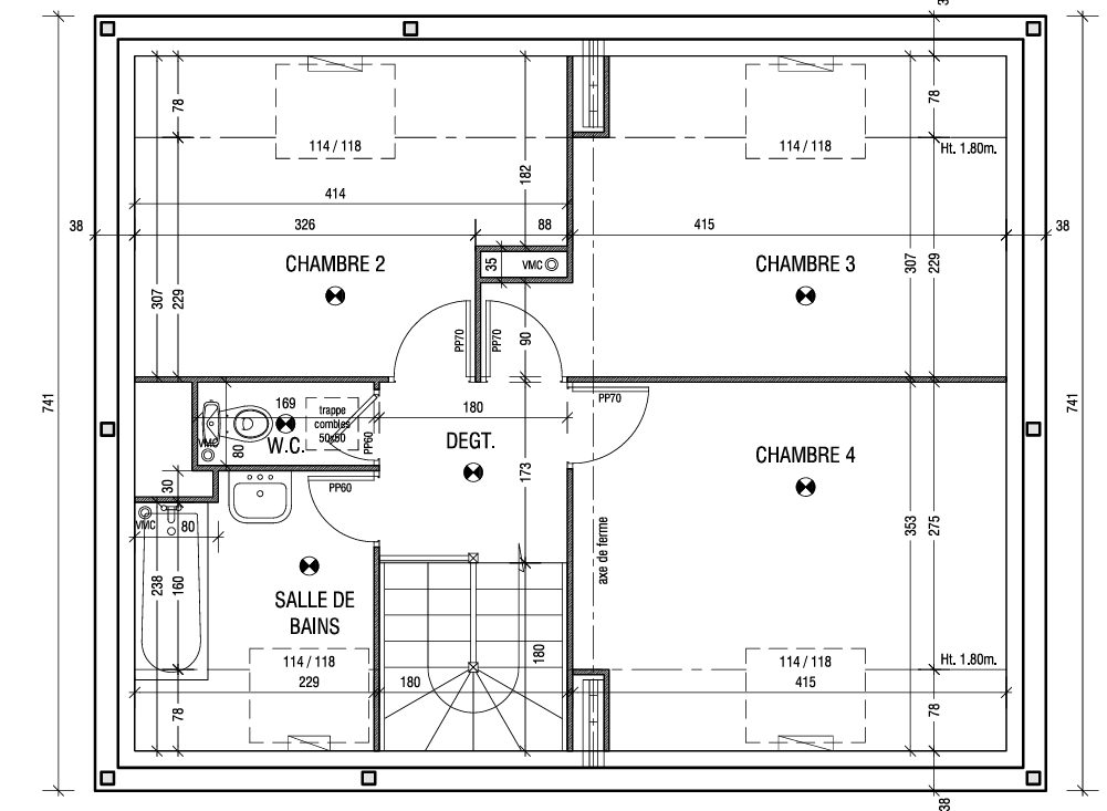
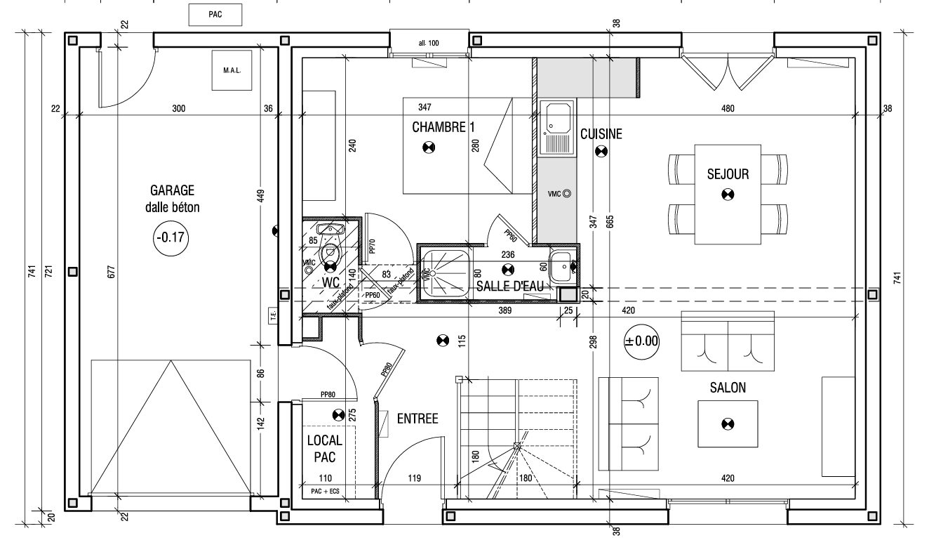
SOUS OFFRE. Maison aménager pour personnes à mobilité réduite sur la commune de Ferel. Maison de 87 m2, érigée sur un terrain de 621 m2. Cette propriété dispose d'une entrée avec placard, d'une cuisine équipée, d'un salon agrémenté d'une cheminée à foyer fermé et d'une salle à manger qui donne sur le jardin et la véranda. Deux chambres, chacune pourvut d'un placard intégré, ainsi qu'une salle d'eau sont à votre disposition. Le garage est relié à la cuisine, incluant un espace buanderie. Le grenier est entièrement aménageable. Vous aurez l'occasion de savourer un petit café sur la terrasse face à un jardin fleuri et boisé. Un local fermé est disponible, idéal pour mettre en place un joli atelier de bricolage. Le prix de vente est de 241 500 EUR, les honoraires étant à la charge du vendeur. Mme Dominique Lambert, votre interlocutrice, se tient à votre disposition pour toute question et pour planifier une visite. Vous pouvez la joindre au *06.34.76.66.07. Date de réalisation du diagnostic : 27/08/2025 Montant estimé des dépenses annuelles d'énergie pour un usage standard : entre 1930 EUR et 2680 EUR par an. Prix moyens des énergies indexés sur l'année 2024 (abonnements compris). Consommation énergie primaire :27344 kWh Consommation énergie finale : non communiqué Logement à consommation énergétique : classe E Les informations sur les risques auxquels ce bien est exposé sont disponibles sur le site Géorisques http://www.georisques.gouv.fr'. La présente annonce immobilière a été rédigée sous la responsabilité éditoriale de Mme Lambert conseillée en portage salarial. Titulaire de la carte de transaction immobilière SARL LES PROFESSIONNELS DE L'IMMOBILIER, immatriculée au RCS Epinal sous le numéro 929 012 722 (sans détention de fonds) - - Le barème d'honoraires est consultable sur notre site : https://les-professionnels.immo/uploads/Bareme.pdf - Annonce rédigée et publiée par un Agent Mandataire -
87 m²
2 776 €
4
2
1
1
1982
2
1
Oui
Consommations énergétiques
Logement économe
311
Logement énergivore (kWhEP/m2/an)
Émissions de gaz à effet de serre
Faible émission de GES
10
Forte émission de GES(kgeqCO2/m2/an)
Contact LAMBERT Dominique
Contacter gratuitement à l'aide du formulaire ci-dessous.