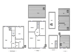
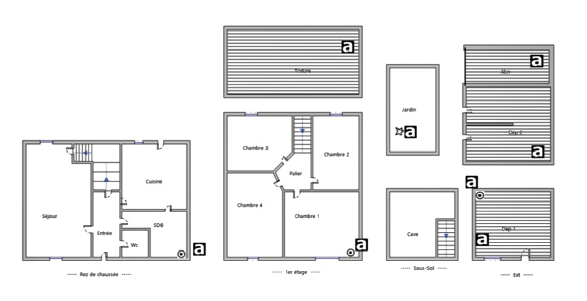
Sous compromis : ? EXCLUSIVITÉ | Maison ancienne à rénover 150 m² au total ? Proche Cambrai Secteur calme et recherché ? Surface habitable : 116 m² Surface au sol : 58 m² ?? 3 chambres ? Grenier aménageable de 40 m² ? Prix : 72?000 FAI ? Mandat n° 6368 À seulement quelques minutes de Cambrai, venez découvrir cette maison ancienne pleine de potentiel, offrant 150 m² exploitables et un jardin privatif dans un environnement calme et verdoyant. Le séjour de 28 m², lumineux et spacieux, ouvre directement sur l'extérieur, idéal pour profiter des beaux jours. ?? À l'intérieur : 6 pièces dont 3 chambres existantes Salle d'eau + WC indépendant Grenier de 40 m² aménageable à votre convenance (chambre, bureau, salle de jeux ) Cave pour le rangement Maison éligible à la fibre optique ? À proximité immédiate : Crèche et collège à 5 min en voiture Écoles maternelles et élémentaires à 10 min à pied Commerces, restaurants, médecin à moins de 15 min à pied Arrêt de bus à 5 min à pied Hôpital accessible en 10 min en voiture ? Travaux à prévoir, mais gros potentiel pour résidence principale ou investissement locatif. ? Votre conseiller Réseau Dupont Expertise Immobilier : Mateo GERALDES Agent commercial (Entreprise individuelle) ? 07 88 63 24 86 ? mateo@dupontexpertise.com RSAC 931145429 RCP Agirela Mandat n° 6368 Prix : 72?000 FAI Honoraires à la charge du vendeur ? La présente annonce immobilière a été rédigée sous la responsabilité éditoriale de l'agent mandataire indépendant en immobilier rédacteur de l'annonce et détenteur du mandat susnommé (sans détention de fonds), agent commercial indépendant Ei pour la société Dupont Expertise Immobilier, titulaire de la carte de démarchage immobilier pour le compte de la société EURL Dupont Expertise Immobilier. Les informations sur les risques auxquels ce bien est exposé sont disponibles sur le site Géorisques : www.georisques.gouv.fr
Classe énergie F, Classe climat F Logement à consommation énergétique excessive. Montant moyen estimé des dépenses annuelles d'énergie pour un usage standard, établi à partir des prix de l'énergie de l'année 2021 : entre 2853.00 et 3861.00 . Les informations sur les risques auxquels ce bien est exposé sont disponibles sur le site Géorisques : georisques.gouv.fr.
Votre conseiller Réseau Dupont Expertise Immobilier : Mateo Geraldes Agent commercial (Entreprise individuelle) RSAC 931145429 RCP Agirela. Les informations sur les risques auxquels ce bien est exposé sont disponibles sur le site Géorisques : www.georisques.gouv.fr. La présente annonce immobilière a été rédigée sous la responsabilité éditoriale de l'agent mandataire indépendant en immobilier rédacteur de l'annonce et détenteur du mandat sus nommé (sans détention de fonds), agent commercial indépendant Ei pour la société Dupont expertise Immobilier, titulaire de la carte de démarchage immobilier pour le compte de la société Eurl Dupont Expertise Immobilier. Retrouvez l'annonce de l'agence immobilière Réseau Dupont Expertise Immobilier sur : https://www.dupontimmobilierexpertise.com/ref/VM11706
Maison ancienne
116 m²
621 €
28 m²
6
3
1
1 (séparé)
Oui
Consommations énergétiques
Logement économe
418
Logement énergivore (kWhEP/m2/an)
Émissions de gaz à effet de serre
Faible émission de GES
85
Forte émission de GES(kgeqCO2/m2/an)
Contact Mateo Geraldes
Contacter gratuitement à l'aide du formulaire ci-dessous.