Maison récente (2017) sous garanties décennales d'environ 105 m², sur terrain de 500 m² et piscine. Découvrez cette superbe maison construite en 2017, offrant environ 105 m² de surface habitable et un terrain de 501m². Cette propriété, en excellent état, est prête à accueillir de nouveaux propriétaires dès maintenant.
Imaginez-vous dans cette maison lumineuse, baignée de soleil grâce à son exposition sud et sa vue dégagée. La terrasse bois qui nécessite très peu d'entretien et le jardin sont parfaits pour des moments de détente en famille. La piscine de 3x6 m ajoute une touche de luxe et de rafraîchissement pendant les chaudes journées d'été.
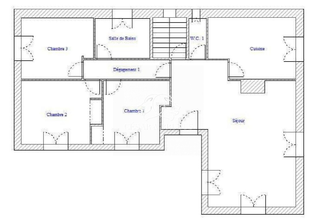
Cette maison de standing comprend 5 pièces, dont 4 chambres spacieuses et 2 salles de bains modernes. Parmi les chambres : une suite parentale au rez-de-chaussée avec dressing et salle d'eau.
La cuisine aménagée et équipée est un véritable atout pour les amateurs de gastronomie.
Le chauffage individuel par pompe à chaleur garantit un confort thermique optimal ainsi qu'une économie d'énergie grâce aux panneaux solaires installés (revente d'électricité).
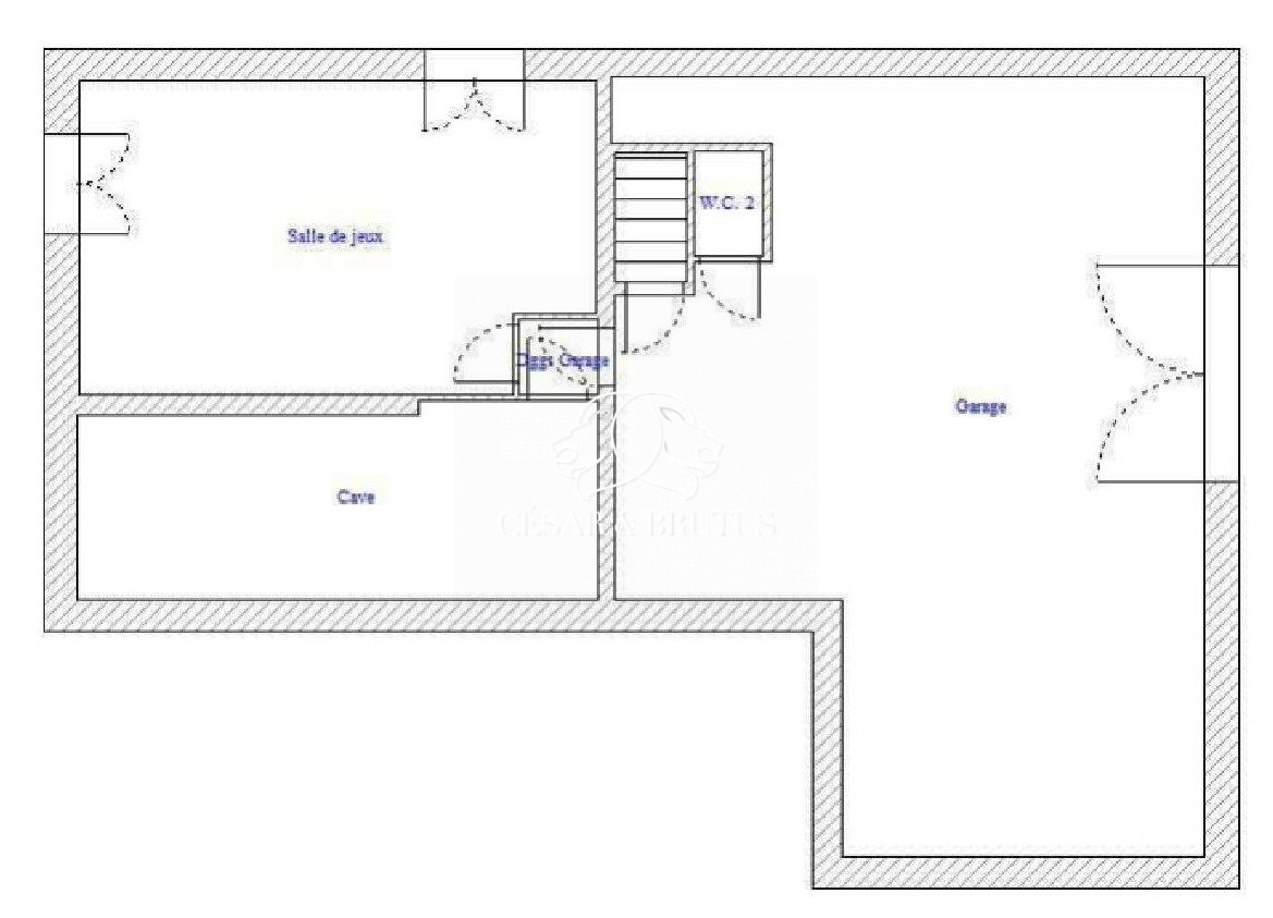
Le spacieux garage est un atout complémentaire pour le stationnement et le rangement. Située dans un quartier prisé, cette maison est à proximité de toutes les commodités. Vous trouverez plusieurs écoles (crèche, maternelle, élémentaire, collège) à quelques minutes en voiture, ainsi que des commerces de proximité. Les transports en commun sont également facilement accessibles, avec un bus à 10 minutes à pied.
La gare de Francheville est à seulement 8 minutes en vélo et vous emmènera à la Gare Saint Paul en 17 minutes.
Ne manquez pas cette opportunité de vivre dans une maison de standing, alliant confort, luxe et praticité. Contactez-nous dès maintenant pour une visite !
Honoraires à la charge du vendeur. Classe énergie B, Classe climat A Montant estimé des dépenses annuelles d'énergie pour un usage standard : entre 650.00 et 930.00 sur les années 2021, 2022 et 2023 (abonnements compris). Les informations sur les risques auxquels ce bien est exposé sont disponibles sur le site Géorisques : georisques.gouv.fr.