Honoraires à la charge de l'acquéreur (Prix hors honoraires : 290000 euros).
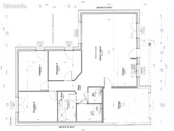
Charron, seulement chez Rochella immobilier, découvrez cette maison récente ( DAACT de juin 2024) de 94 m² de surface habitable, implantée sur une parcelle de 263 m². Maison de PLAIN PIED, aux normes PMR et réglementation 2020. Cette construction récente offre tout le confort aussi bien dans la distribution des pièces et que dans les installations éco-énergétiques (PAC au sol dans toutes les pièces, maison en briques, fibre) Ce bien lumineux est situé au calme, il offre 3 chambres, une pièce de vie de 42 m² avec cuisine aménagée, un cellier, WC séparés, une salle d'eau, un garage. LE PLUS: les espaces extérieurs sont réalisés également (terrasse en bois, pelouse synthétique, jardin d'acceuil), DPE en A Vous posez vos valises!
Je reste à votre disposition pour toutes informations complémentaires.
Honoraires inclus de 3.45% TTC à la charge de l'acquéreur. Prix hors honoraires 290 000 . Classe énergie A, Classe climat A Montant moyen estimé des dépenses annuelles d'énergie pour un usage standard, établi à partir des prix de l'énergie de l'année 2024 : entre 320.00 et 470.00 . Les informations sur les risques auxquels ce bien est exposé sont disponibles sur le site Géorisques : georisques.gouv.fr.