40700 HAGETMAU / MAISON RECENTE T6 DE 218 m² / 4 CHAMBRES / A TERMINER / SUR 5790 m². OPPORTUNITE RARE SUR LE SECTEUR.
A l'entrée d'une petite commune, et à seulement 8 mn de Hagetmau, maison individuelle récente d'architecte (2014) de 218 m² habitable de plein pied, gros oeuvre terminé, sur un terrain avec vues de 5790 m².
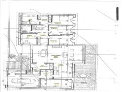
Cette maison contemporaine construite aux normes parasismiques et RT 2012 vous permet de développer le second oeuvre selon vos envies et votre goût. Vous pouvez également vous inspirer de l'aménagement intérieur prévu initialement (voir proposition de plan avec les photos) : une pièce de vie de 55 m² avec plafond cathédrale, une cuisine ouverte (pouvant être fermée) de plus de 18 m², une arrière cuisine (ou autre usage) de 17 m², un cellier de 7 m², une suite parentale composée d'une chambre de plus de 15 m², d'un dressing de plus de 6m2 et d'une salle de bain (baignoire et douche) de plus de 8m2. Dans la partie nuit, vous pourrez également bénéficier de 3 autres chambres avec placards (deux de 15 m² environ, et la dernière de plus de 10 m² pouvant également servir de bureau), d'une salle d'eau.
Cette maison bénéficie également d'un garage intégré avec accès direct au cellier de plus de 24 m² et d'un sous-sol complet (plus de 200 m²) et entièrement aménageable (ateliers, garages supplémentaires, salle de jeu, salle de home cinéma, etc...).
Cette maison hors d'eau et hors d'air (ouvertures de qualité toutes posées) bénéficie d'un beau terrain d'une surface de 5790 m².
Au calme mais pas isolé, ce bien peut facilement être agrémenté d'une piscine et son pool-house, ainsi que de garages supplémentaires indépendants : le permis de construire validé le prévoit, et près de la moitié de la parcelle est en qualification constructible (de plus en plus rare avec le nouveau PLUI).
Honoraires à la charge du vendeur. Non soumis au DPE. Les informations sur les risques auxquels ce bien est exposé sont disponibles sur le site Géorisques : georisques.gouv.fr.