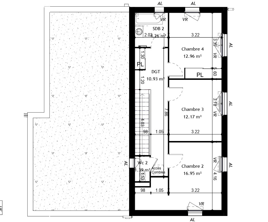
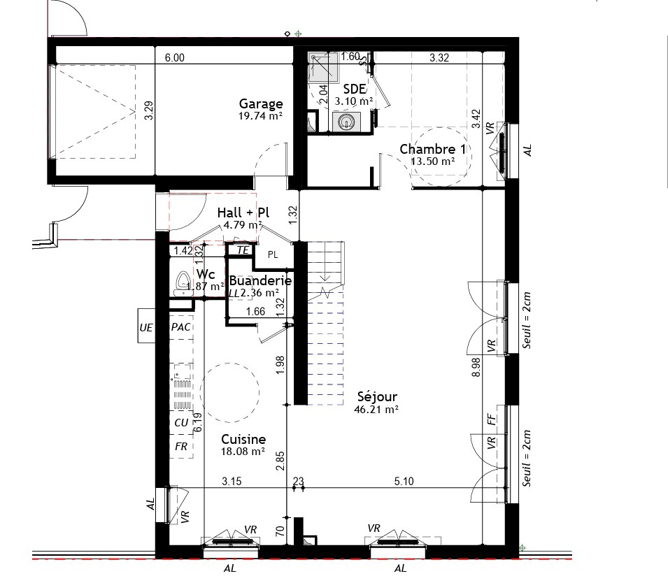
Érigée en 2023 sur la commune recherchée d'Anse, cette maison contemporaine développe 165m² dont 145m² habitables, associés à un terrain de 425m² soigneusement aménagé. Ses espaces lumineux, ses prestations haut de gamme, sa piscine effet Bali et sa large terrasse orientée sud-est composent un cadre de vie privilégié. L'entrée s'ouvre sur une vaste pièce de vie de 55m² où la cuisine équipée aux lignes contemporaines se prolonge naturellement vers le salon et la salle à manger. Les volumes, la luminosité et la décoration soignée créent une atmosphère chaleureuse et confortable avec un magnifique parquet massif. L'espace nuit du rez-de-chaussée accueille trois chambres, une salle d'eau pouvant intégrer une baignoire ainsi qu'un WC indépendant. L'étage est dédié à une suite parentale comprenant chambre, dressing et salle d'eau avec WC privatif, offrant une intimité appréciable. Un sous-sol complet de 60m², dont 45m² de garage et 15m2 de buanderie, renforce la fonctionnalité de cette maison familiale. A l'extérieur, la terrasse en travertin accompagne la pièce principale, prolongeant la vie en intérieur vers le jardin. La piscine en PVC armé invite à la détente, tandis que le terrain de pétanque apporte une touche conviviale. L'ensemble profite d'un arrosage automatique facilitant l'entretien des espaces verts. Par son architecture récente, sa localisation proche des commerces, ses prestations qualitatives, ses volumes généreux et son aménagement pensé pour un confort optimal, cette maison affirme son caractère singulier et s'inscrit pleinement dans l'esprit des biens atypiques. - Pompe à chaleur (air/eau) : plancher chauffant/rafraîchissant - Parquet chêne massif - Climatisation CLASSE ENERGIE : A / CLASSE CLIMAT : A Montant moyen estimé des dépenses annuelles d'énergie pour un usage standard, établi à partir des prix de l'énergie de l'année 2021, 2022 et 2023 : entre 740 euros et 1 060 euros. Contact : Aurélien - 06 32 21 70 25 Aurelien Badin (EI) Agent Commercial - Numéro RSAC : 894 025 436 - VIENNE.