Maison récente de 2016 RT2012 Lumineuse Terrain plat d
Palaiseau 91120
0
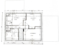
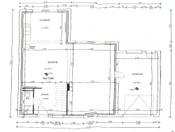
Venez découvrir cette maison moderne construite en 2016, conforme à la norme RT2012, offrant confort et luminosité. Implantée sur un terrain plat de 411 m2, elle propose une surface habitable d'environ 111 m2. Au rez-de-chaussée, vous apprécierez un vaste espace de vie d'environ 56 m2 exposé plein sud, comprenant une cuisine ouverte entièrement équipée ainsi qu'une salle d'eau avec WC. À l'étage, trois grandes chambres et une salle de bains fonctionnelle avec douche et baignoire complètent l'espace nuit. Un garage d'environ 18 m2, accessible depuis la maison, offre un stationnement sécurisé ainsi qu'un espace de rangement supplémentaire. Contactez-nous pour obtenir davantage de photos ou organiser une visite et découvrir tout le confort qu'elle propose.
111 m²
5 180 €
56 m²
411 m²
5
3
1
1
2
2016
Sud
Nord
2
1
1
Consommations énergétiques
Logement économe
59
Logement énergivore (kWhEP/m2/an)
Émissions de gaz à effet de serre
Faible émission de GES
11
Forte émission de GES(kgeqCO2/m2/an)
Contact AGENCE IMMOBILIERE DU GOLF
Contacter gratuitement à l'aide du formulaire ci-dessous.