Honoraires à la charge de l'acquéreur (Prix hors honoraires : 289000 euros).
Rare sur le secteur !
À seulement quelques pas des commerces et des commodités, dans le centre-bourg très recherché de Carignan-de-Bordeaux, venez découvrir cette belle maison récente à ossature bois, mitoyenne d'un côté, pleine de charme et de bon sens, construite avec goût et pensée pour une vie facile. A 5mn en voiture de Latresne, la rocade bordelaise est quant à elle accessible en moins de 10 minutes.
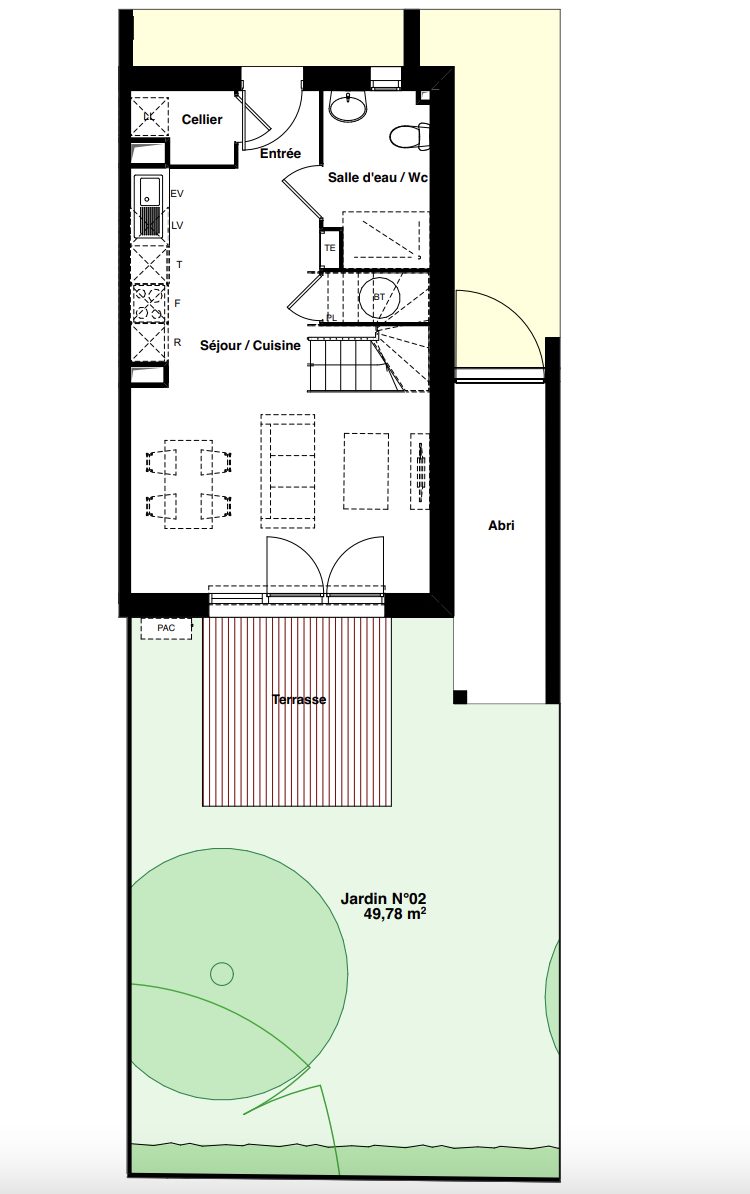
Agencement malin et prestations modernes : Dès l'entrée, vous découvrirez un bel espace de vie lumineux de 31 m², comprenant un séjour tourné vers le jardin et une cuisine contemporaine ouverte. Un cellier discret et un WC indépendant complètent intelligemment ce rez-de-chaussée. À l'étage, le coin nuit se compose de trois chambres confortables (9, 11 et 12m²), de deux salles d'eau avec douches à l'italienne, ainsi que d'un second WC indépendant.
Un extérieur qui coche toutes les cases : Jardin de près de 230m² Abri voiture Cabanon de 4m² Local fermé attenant à la maison, idéal pour atelier, bureau ou stockage
Les + de cette maison : Emplacement premium : tout se fait à pied ! Maison récente, aucun travaux à prévoir Ambiance cosy
Honoraires inclus de 3.43% TTC à la charge de l'acquéreur. Prix hors honoraires 289 000 . Classe énergie C, Classe climat A Montant moyen estimé des dépenses annuelles d'énergie pour un usage standard, établi à partir des prix de l'énergie de l'année 2023 : entre 793.00 et 1073.00 . Les informations sur les risques auxquels ce bien est exposé sont disponibles sur le site Géorisques : georisques.gouv.fr.