Maison récente plain-pied 95 m2 jardin sans vis-à-vis ga
Yves 17340
0
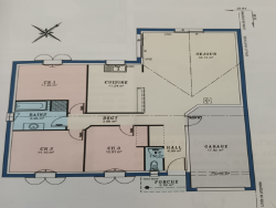
Découvrez cette agréable maison de plain-pied de 95 m2, construite en 2011, située dans la commune d'Yves, entre Rochefort et La Rochelle et à seulement quelques minutes des plages de Fouras Une maison lumineuse, fonctionnelle et parfaitement entretenue, idéale pour une résidence principale ou secondaire à proximité de l'océan. Elle se compose de : o Une entrée avec placard o Un grand séjour lumineux avec poêle à bois o Une cuisine ouverte conviviale et pratique o 3 chambres de plus de 10 m2 o Une salle de bain avec baignoire et douche o WC séparé Un garage de 18 m2 complète l'ensemble. À l'extérieur, vous profiterez d'une terrasse et d'un jardin clos de 412 m2 sans vis-à-vis, idéal pour les moments de détente en famille. Maison sans travaux, prête à accueillir ses nouveaux propriétaires. Montant estimé des dépenses annuelles d'énergie pour un usage standard : entre 1 410 EUR et 1 950 EUR par an. Prix moyens des énergies indexés sur les années 2021, 2022, 2023 (abonnements compris) Les informations sur les risques auxquels ce bien est exposé sont disponibles sur le site Géorisques : http://www.georisques.gouv.fr Proposée par votre conseillère Noovimo Michèle AMELOT 06 64 48 73 31 miamelot@noovimo.fr, agent indépendant inscrit en portage salarial Free cadre sous couvert de la carte T No 4401 2018 000 028 735.L Honoraires 4,4 %TTC de 260 000 euros (prix de vente honoraires exclus) soit 271 440 EUROS HONORAIRES INCLUS. Les honoraires sont à la charge de l'acquéreur et sont consultables sur www.noovimo.fr - Annonce rédigée et publiée par un Agent Mandataire -
95 m²
2 857 €
412 m²
4
3
1
1
2011
1
1
Consommations énergétiques
Logement économe
197
Logement énergivore (kWhEP/m2/an)
Émissions de gaz à effet de serre
Faible émission de GES
6
Forte émission de GES(kgeqCO2/m2/an)
Contact Michèle AMELOT
Contacter gratuitement à l'aide du formulaire ci-dessous.