Maison LVRD by Blaow vous présente en exclusivité :
Située dans une impasse paisible à deux pas du canal, dans un secteur résidentiel, Rue Ernest Renan, cette maison offre un cadre de vie agréable, à la fois calme et proche des commodités.
Entièrement rénovée récemment avec soin, elle combine confort moderne et prestations soignées. Vous y trouverez de beaux volumes et une distribution fonctionnelle.
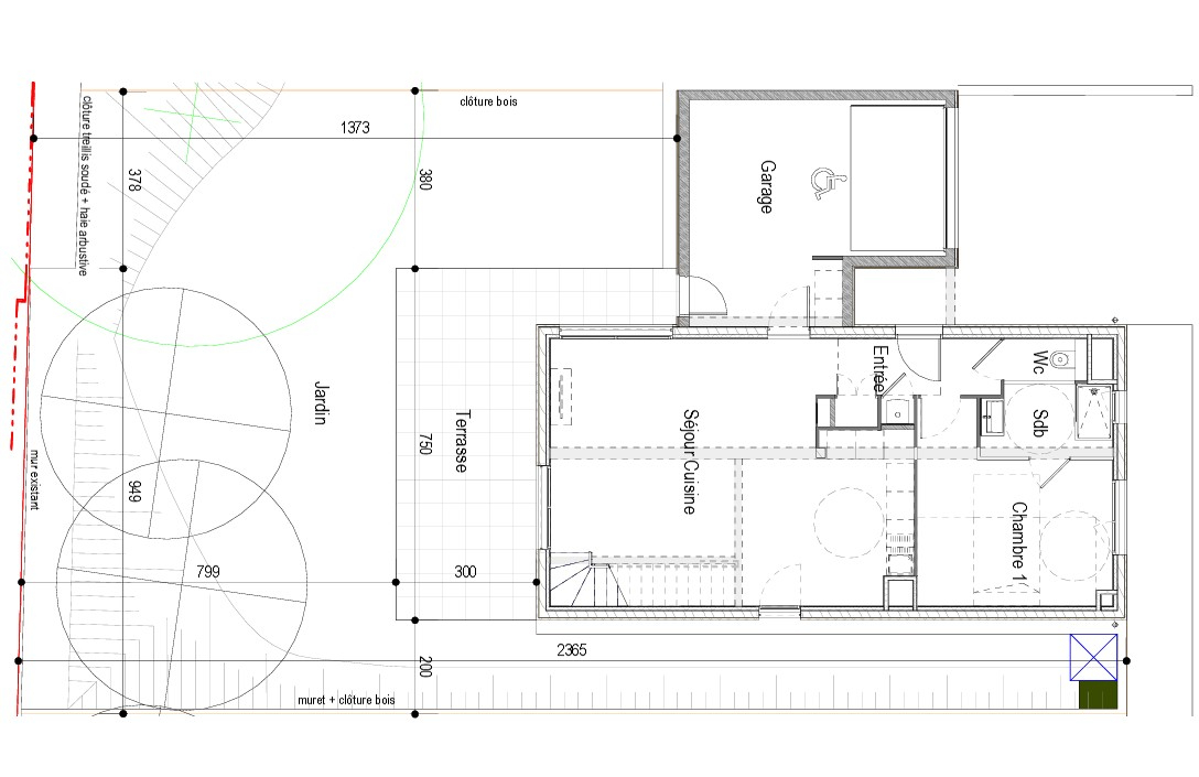
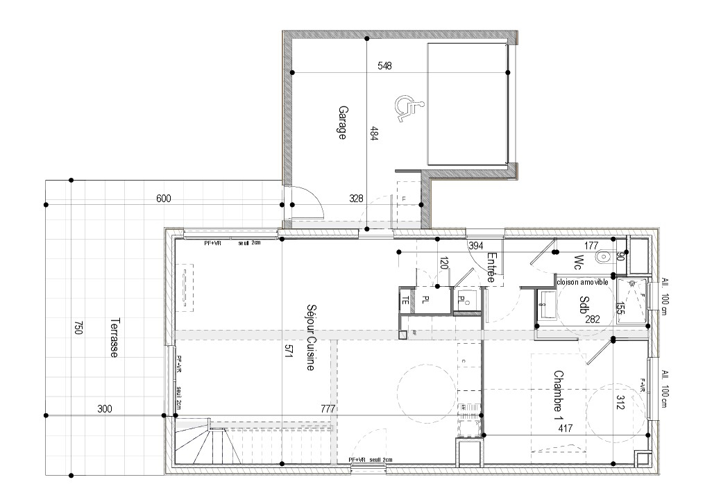
Au rez-de-chaussée, une cuisine équipée ouverte sur une salle à manger et une pièce de vie lumineuse donnant sur le jardin. Une suite parentale avec dressing et salle d'eau, ainsi qu'un WC séparé, complètent ce niveau.
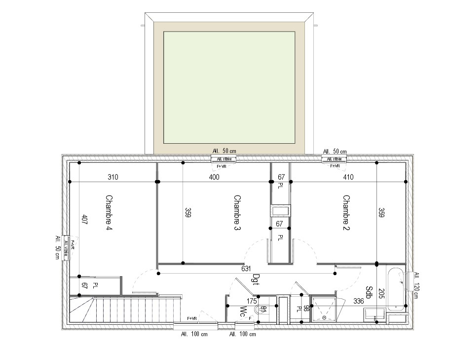
L'étage accueille trois chambres supplémentaires, un bel espace ouvert d'environ 30 m² idéal pour une salle de jeux, un bureau ou un second salon, une salle de bain avec baignoire et douche, ainsi qu'un second WC.
Le terrain de plus de 400 m² dispose d'une grande terrasse, d'un espace bien être et loisirs. Le portail est motorisé.
Enfin, une grande cave en sous-sol d'environ 60 m² avec belle hauteur sous plafond offre de nombreuses possibilités de rangement ou d'aménagement.
Toutes les garanties sont disponibles pour les huisseries, la charpente, la toiture, la maçonnerie, la plomberie ...
La présente annonce immobilière a été rédigée sous la responsabilité éditoriale de M. Lucas DOUCHET (EI), agent commercial immatriculé au RSAC de Lyon sous le numéro 792899049.
Honoraires à la charge du vendeur. Classe énergie C, Classe climat A Montant moyen estimé des dépenses annuelles d'énergie pour un usage standard, établi à partir des prix de l'énergie de l'année 2021 : entre 966.00 et 1308.00 . Les informations sur les risques auxquels ce bien est exposé sont disponibles sur le site Géorisques : georisques.gouv.fr. Ce bien vous est proposé par un agent commercial (Entreprise individuelle).
Votre conseiller BLAOW : Lucas DOUCHET Agent commercial (Entreprise individuelle)
Maison ancienne
152.57 m²
4 260 €
49 m²
411 m²
6
4
1
1
2 (séparés)
Sud
Nord
Oui
1
1
1
Consommations énergétiques
Logement économe
176
Logement énergivore (kWhEP/m2/an)
Émissions de gaz à effet de serre
Faible émission de GES
5
Forte émission de GES(kgeqCO2/m2/an)
Contact Lucas DOUCHET
Contacter gratuitement à l'aide du formulaire ci-dessous.