LESQUIN CALME ET VERDOTANT - A 7 Min de LILLE en train
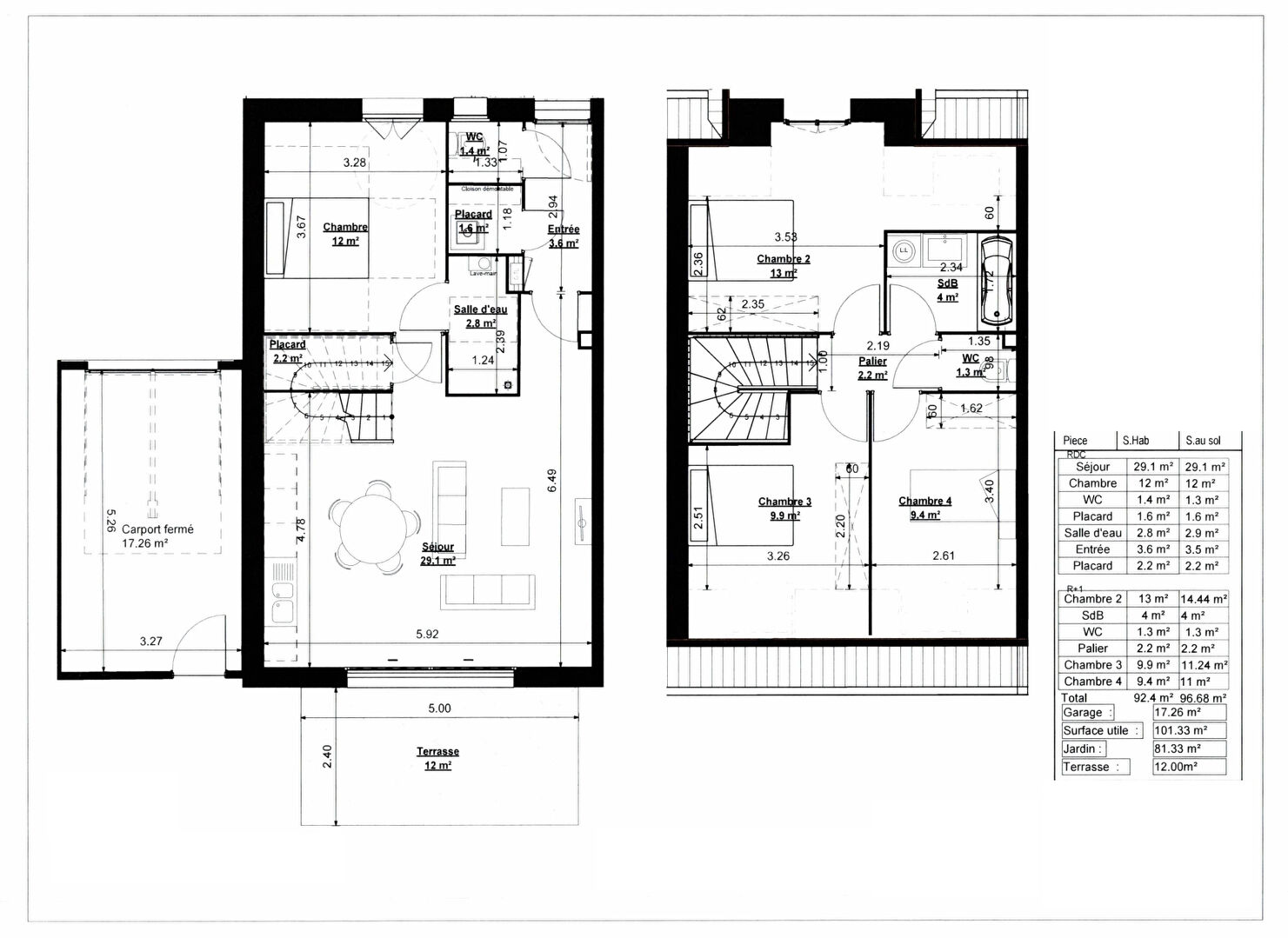
110M² HAB / 140M² UTILE - SUR 630M²
Bsk vous invite à découvrir une maison entièrement rénovée, en retrait de rue et avec des matériaux de qualité
Cette maison semi individuelle comprend : hall, belle pièce de vie de 40m² avec poêle, grande cuisine équipée, wc et salle d'eau
au 1er : grand palier / bureau 15m², 2 chambres non mansardées 11 / 13M², au second 1 grande chambre possibilité 2 (42m²)
cave - jardin bien exposé, clos et sans vis a vis
Vous apprécierez : son passage sur le coté desservant le garage 2V, sa luminosité, la qualité des matériaux
A 7 Min de LILLE en train, A 5Min du Metro 4 Cantons de Villeneuve en bus et au carrefour de toutes les autoroutes
Pour toutes visites, Sébastien AELBRECHT 06x50x08x81x70
BSK IMMOBILIER LESQUIN
Cette annonce référence 290819 vous est présentée par votre agent commercial BSK Immobilier SEBASTIEN AELBRECHT (EI) immatriculé au RSAC de ARRAS (62000) sous le numéro 48395096000045.
Prix du bien : 366 000,00 €
Les honoraires d'agence sont à la charge du vendeur.
A propos des performances énergétiques :
Date de réalisation du diagnostic énergétique : 04/08/2023
Score DPE : 211 kWhEP/m²/an
Score GES : 26 kgepCO2/m²/an
Montant estimé des dépenses annuelles d'énergie pour un usage standard : entre 1390.00 € et 1930.00 € par an. Prix moyens des énergies indexés sur l'année 2021 (abonnements compris).
Les informations sur les risques auxquels ce bien est exposé sont disponibles sur le site Géorisques : www.georisques.gouv.fr
110 m²
3 327 €
6
4
1
1
1950
Oui
Consommations énergétiques
Logement économe
211
Logement énergivore (kWhEP/m2/an)
Émissions de gaz à effet de serre
Faible émission de GES
26
Forte émission de GES(kgeqCO2/m2/an)
Contact Sebastien AELBRECHT
Contacter gratuitement à l'aide du formulaire ci-dessous.