Olivier Serlippens vous propose ce bien de 72 m2 à St Georges de Didonne ( 17110) se trouvant à 8 minutes à pied du centre ville et à quelques minutes de la plage.
Cette maison non mitoyenne en pierre datant des années 20 ayant eu une belle rénovation se compose:
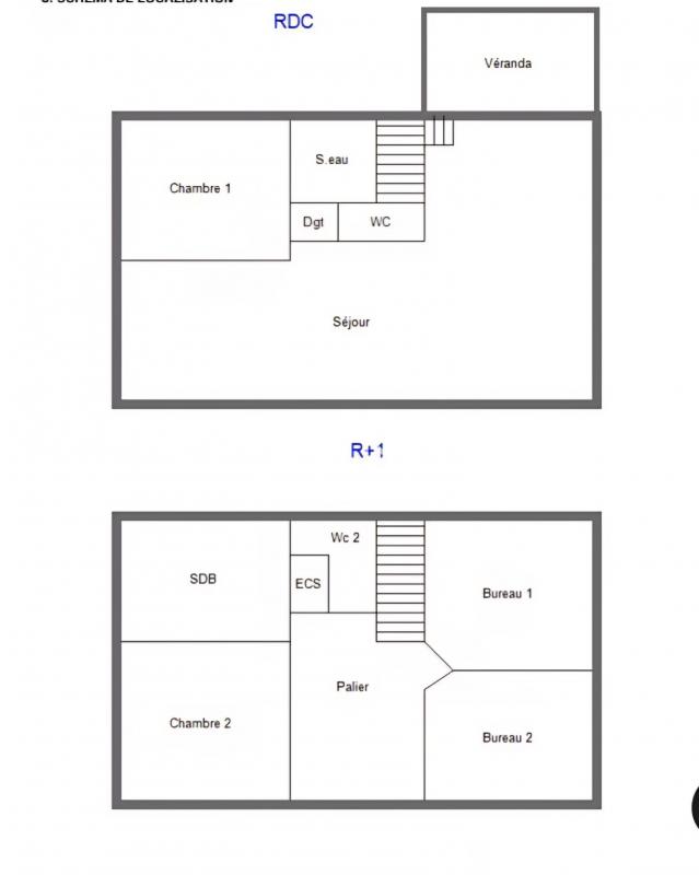
Entrée en Rez de chaussée surélevé ouvrant sur beau séjour lumineux de 25 m2 avec très belle cuisine ouverte équipée, deux chambres avec placards, salle d'eau avec wc. Entrée possible aussi à l'arrière, nombreux placards
En Rez de jardin: Chambre, wc et grande cave en pierre
Dépendances. Belle terrasse sur l'arrière couverte
Volets électriques
L'ensemble sur un terrain clos et arboré de 360 m2
Stationnement pour plusieurs véhicules dans l'allée
Chauffage au gaz de ville
Idéal pour du secondaire au bord de Mer car peu d'entretien au quotidien.
Secteur calme
Royan et Meschers sur Gironde à moins de 10 mn
A découvrir rapidement
Prix de vente 420 000 euros Honoraires : 5 % TTC inclus charge acquéreur
( 400 000 euros hors honoraires) Montant estimé des dépenses annuelles d'énergie pour un usage standard : entre 1 300 euros et 1 720 euros par an.
Prix moyens des énergies indexés au 01/07/2021 (abonnement compris). DPE : E GES : B
Pour visiter et vous accompagner dans votre projet, contactez Olivier SERLIPPENS, Portable: 06 11 34 30 46 ou par courriel à o.serlippens@proprietes-privees.com
Selon l'article L.561.5 du Code Monétaire et Financier, pour l'organisation de la visite, la présentation d'une pièce d'identité vous sera demandée.
Cette présente annonce a été rédigée sous la responsabilité éditoriale de Olivier SERLIPPENS agissant sous le statut d'agent commercial auprès de la SAS PROPRIETES PRIVEES, au capital de 44 920 euros, ZAC LE CHÊNE FERRÉ - 44 ALLÉE DES CINQ CONTINENTS 44120 VERTOU; SIRET 487 624 777 00040, RCS Nantes. Carte professionnelle Transactions sur immeubles et fonds de commerce (T) et Gestion immobilière (G) n° CPI 4401 2016 000 010 388 délivrée par la CCI Nantes - Saint Nazaire. Compte séquestre n°30932508467 BPA SAINT-SEBASTIEN-SUR-LOIRE (44230) ; Garantie GALIAN - 89 rue de la Boétie, 75008 Paris - n°28137 J pour 2 000 000 euros pour T et 120 000 euros pour G. Assurance responsabilité civile professionnelle par MMA Entreprise n° de police 120.137.405
Mandat réf 427067 - Le professionnel garantit et sécurise votre projet immobilier. (5.00 % honoraires TTC à la charge de l'acquéreur.)
Olivier SERLIPPENS (EI) Agent Commercial - Numéro RSAC : 441882875 - .
72 m²
5 833 €
25 m²
360 m²
4
3
1
2
1920
Ouest
Nord
Oui
Oui
Consommations énergétiques
Logement économe
295
Logement énergivore (kWhEP/m2/an)
Émissions de gaz à effet de serre
Faible émission de GES
10
Forte émission de GES(kgeqCO2/m2/an)
Contact REZOXIMO
Contacter gratuitement à l'aide du formulaire ci-dessous.