Les charges de location sont prévisionnelles mensuelles avec régularisation annuelle.
Je vous propose en exclusivité à la vente, cette maison spacieuse de 115 m² habitables sur un sous-sol de la même superficie.
Située dans un cadre paisible avec une vue imprenable sur la nature, cette maison vous offre un environnement idéal pour les amoureux de tranquillité et d'espaces verts.
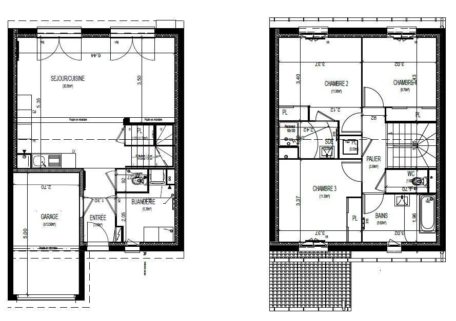
Vous y trouverez une entrée, une cuisine indépendante, une grande pièce à vivre lumineuse, un dégagement menant à trois chambres, une salle de bains avec toilettes et également des toilettes séparés.
Quant au sous-sol, il est composé d'un garage spacieux, d'une cave, d'une chaufferie et de deux pièces supplémentaires offrant de nombreuses possibilités (atelier, stockage, salle de loisirs, chambre supplémentaire).
Le tout sur un terrain attenant de 1 409 m², parfait pour profiter de la nature, des grands espaces et des jeux en plein air avec vos enfants.
À remettre au goût du jour, elle séduira les passionnés de travaux et de projets sur mesure. Une opportunité rare pour créer la maison de vos rêves !
Si vous travaillez en Suisse, cette maison est seulement à une cinquantaine de kilomètres de Genève.
Honoraires à la charge du vendeur. Classe énergie F, Classe climat F Logement à consommation énergétique excessive. Montant estimé des dépenses annuelles d'énergie pour un usage standard : entre 4077.00 et 5517.00 sur les années 2021, 2022 et 2023 (abonnements compris). Les informations sur les risques auxquels ce bien est exposé sont disponibles sur le site Géorisques : georisques.gouv.fr. Ce bien vous est proposé par un agent commercial (Entreprise individuelle).