Maison spacieuse, lumineuse sans aucuns travaux intérieur à pr
Tarare 69170
0
Honoraires à la charge du vendeur.
https://youtu.be/KKXxucrMUQI
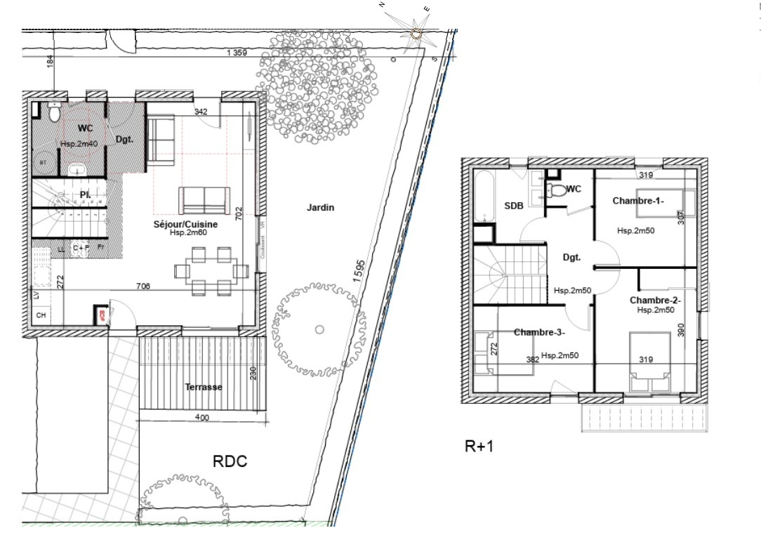
A TARARE, à visiter sans tarder, maison sur les hauteurs avec une vue dominante aux pieds des chemins et proche des commerces. Imaginez-vous avec de beaux espaces de vie ou vous n'avez plus qu'à déposer vos meubles, Cette maison rénovée récemment vous offrira un confort contemporain sur sa rénovation et son extension, tout en préservant son charme d'antan sur son bâti ancien. Ultra fonctionnelle, les volumes étant pour la majorité de plain pied, Composée aujourd'hui en en rez-de-chaussée, d'une vaste cuisine meublée et équipée, un immense salon qui baigne de lumière naturelle traversant, avec accès direct sur les terrasses et le terrain naturel, un WC, deux chambres et une salle d'eau, A l'étage une grande pièce pouvant faire office d'une 3ème chambre ou autre selon vos besoin et envie, Les pièces en sous-sol n'attendent plus que vos idées avec diverses possibilités qui s'offrent à vous, salle de jeux, bureau, suite parentale , possibilité d'un vrai petit appartement pour compléter avec un espace de vie intime et confortable pour recevoir des proches/télétravailler, faire du sport ou exercer une profession indépendante. L'exposition Sud/ouest assure de beaux couchers de soleil . Petite zone de stockage, grandes caves et grande buanderie complètent ce bien.
A proximité de toutes les commodités, (tous les commerces, la gare, crèches, écoles maternelles, élémentaires, collèges; lycées, théâtre, cinéma, etc...).
Les points forts: -Aucuns travaux à prévoir vous posez vos meubles Clim réversibles -Les volumes ou chaque membre de la famille bénéficie de son intimité -Idéalement située, et au calme, une vue à 360, -Pièces de stockage -Bien exposée - Aux pieds des commerces et des chemins
Ne rater pas cette belle opportunité de devenir propriétaire!
Votre contact Estelle LAFOUGERE au 07.61.16.52.83 ou sur e.lafougere@pietrapolis.fr
Honoraires à la charge du vendeur. Classe énergie D, Classe climat B Montant estimé des dépenses annuelles d'énergie pour un usage standard : entre 1817.00 et 2459.00 sur les années 2021, 2022 et 2023 (abonnements compris). Les informations sur les risques auxquels ce bien est exposé sont disponibles sur le site Géorisques : georisques.gouv.fr.
Maison ancienne
112 m²
3 125 €
32 m²
2268 m²
5
3
1
Oui
Consommations énergétiques
Logement économe
211
Logement énergivore (kWhEP/m2/an)
Émissions de gaz à effet de serre
Faible émission de GES
6
Forte émission de GES(kgeqCO2/m2/an)
Contact Estelle LAFOUGERE
Contacter gratuitement à l'aide du formulaire ci-dessous.