Maison spacieuse et authentique à Petosse proche de Fontenay le comte
Petosse 85570
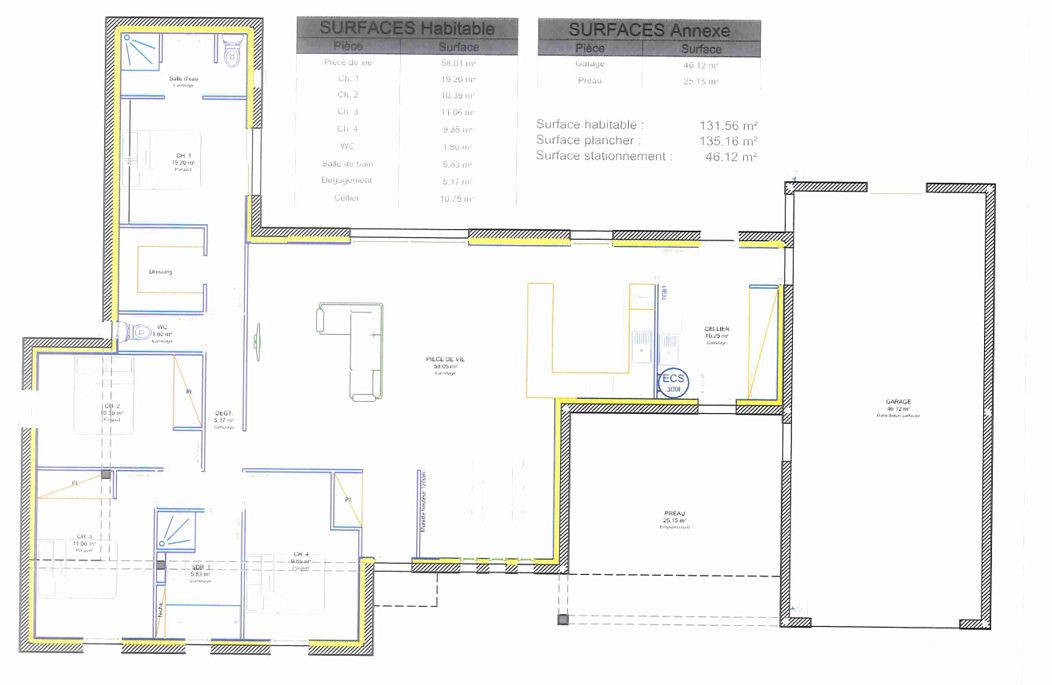
0
Découvrez cette majestueuse maison de 220 m² située au c?ur de Petosse, offrant un véritable retour dans le temps avec son charme des années 1920. Nichée dans un quartier paisible, elle promet une vie de village tranquille tout en restant à proximité des commodités.
Cette maison se distingue par ses 6 pièces, chacune offrant un espace généreux pour laisser libre cours à vos aspirations, elle offre un potentiel exceptionnel pour personnaliser chaque espace selon vos besoins. La construction robuste datant de 1920 traduira la qualité de son architecture intemporelle.
A 7mn de l'autoroute, à proximité d'école, à 10mn de l'hypercentre de Fontenay le Comte
La toiture est de 2020.
Maison en pierre à rénover intérieurement.
SPECIAL INVESTISSEUR
Cette maison est prête pour accueillir votre prochain chapitre à Petosse. Contactez Guillaume Chataignier pour une visite.
Cette annonce référence 293595 vous est présentée par votre agent commercial BSK Immobilier GUILLAUME CHATAIGNIER (EI) immatriculé au RSAC de LA ROCHE-SUR-YON (85000) sous le numéro 78911669600038.
Prix du bien : 114 000,00 €
Les honoraires d'agence sont à la charge du vendeur.
Non soumis au DPE.
Les informations sur les risques auxquels ce bien est exposé sont disponibles sur le site Géorisques : www.georisques.gouv.fr
220 m²
518 €
6
1920
Oui
Contact GUILLAUME CHATAIGNIER
Contacter gratuitement à l'aide du formulaire ci-dessous.