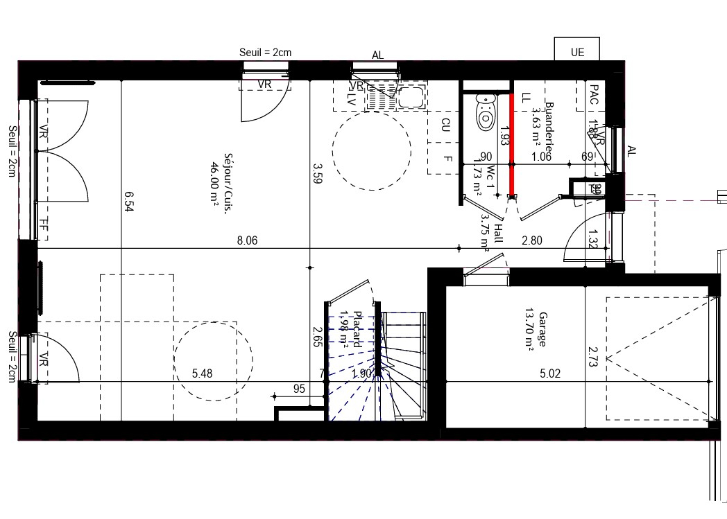
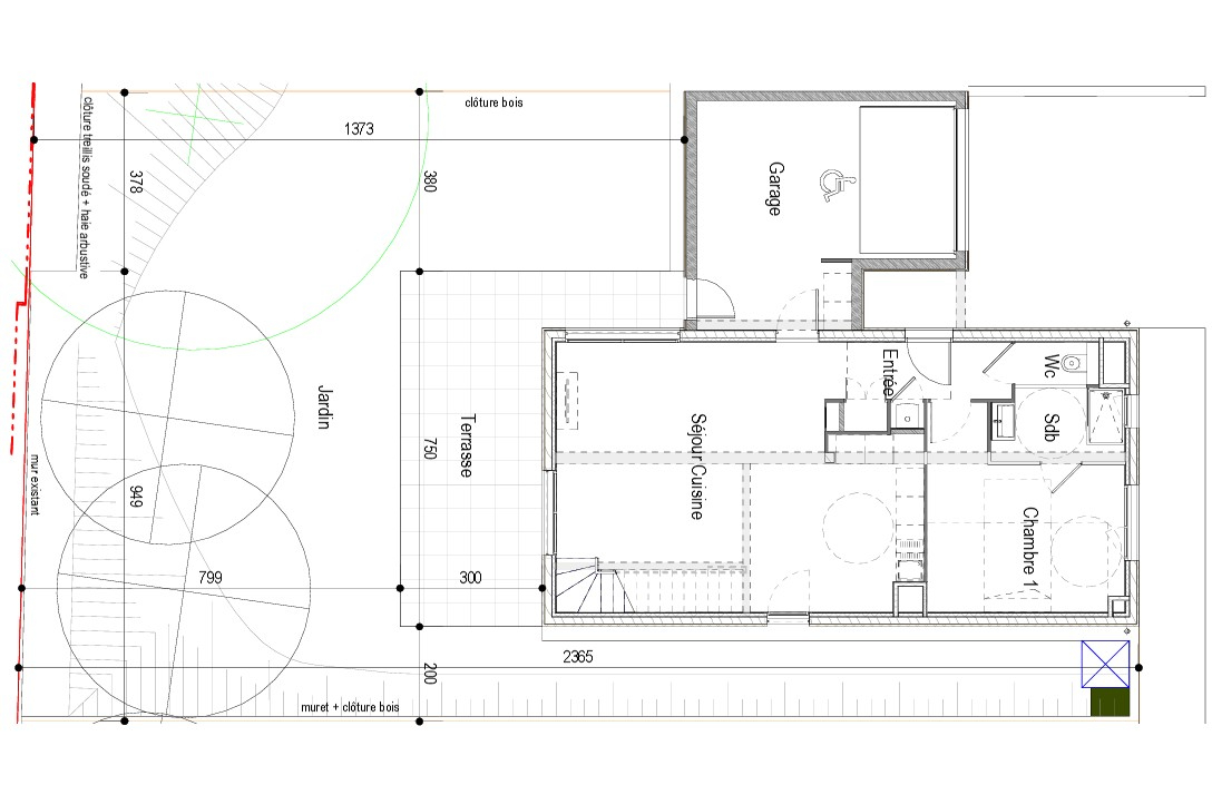
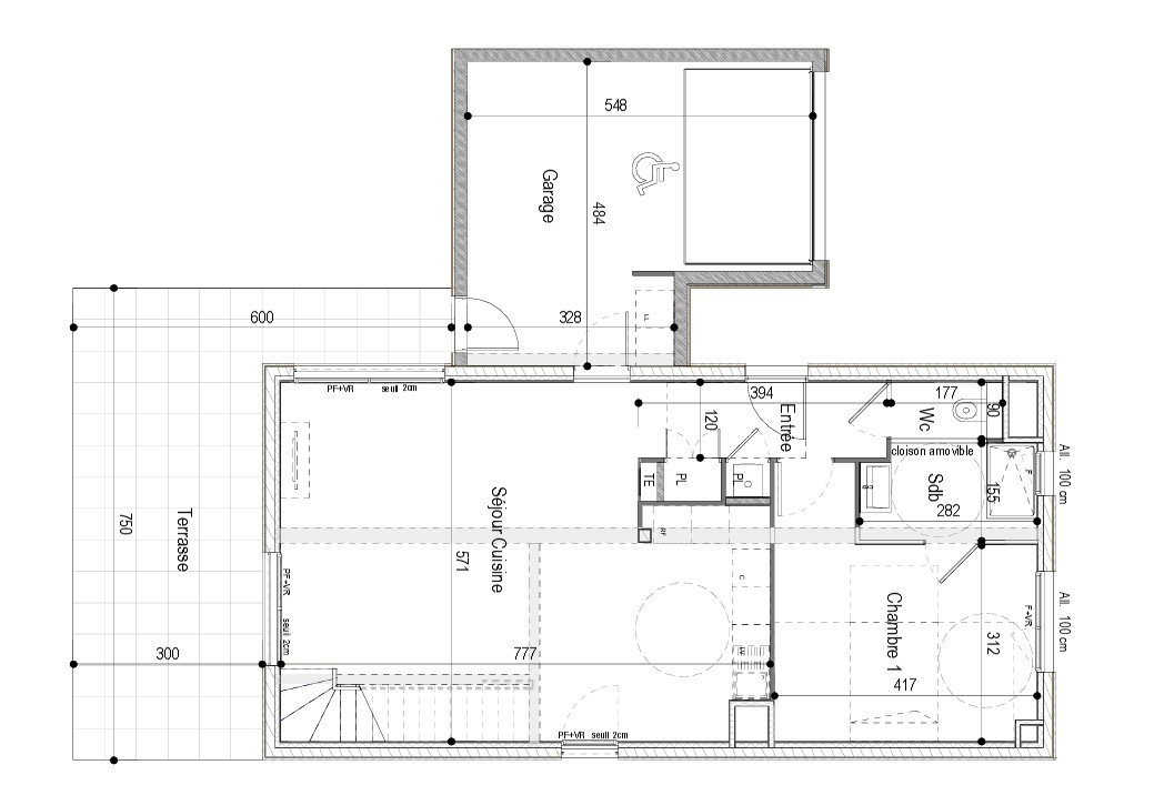
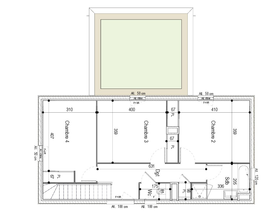
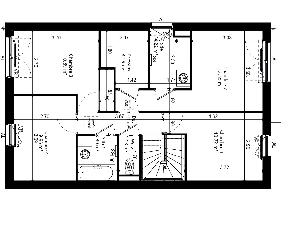
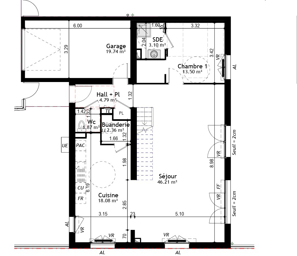
AMILTONE IMMOBILIER vous propose cette magnifique maison sur Lacenas avec vue directe sur le mont Blanc !!!! Construction de 2001 très bien pensée, puis entièrement rénovée en 2021 elle se compose au rdc d'une entrée, de wc séparés, d'une buanderie, d'une très grande pièce de vie lumineuse avec une cheminée triple foyer et donnant sur une terrasse surplombant la piscine. Une cuisine ouverte sur la salle à manger entièrement équipée trouve toute sa place dans le prolongement, de quoi vous offrir de nombreux moments de convivialité. Enfin dans cette immensité, vous trouverez un espace légèrement surélevé pour dissocier les espaces pouvant faire offiice de coin lecture / bibliothèque à convenance. Toujours de plain pieds, cette maison vous offre une suite parentale avec sa salle de bain privative et son dressing, une seconde chambre avec sa salle d'eau et son solarium et une troisième chambre .A l'étage, une mezzanine pouvant se fermer pour en faire une chambre supplémentaire ou autre, une quatrième chambre avec salle d'eau privative et des wc séparés. Amateurs de belles voitures, de vin ou de bricolage ??? un sous-sol complet de plus de 150 m2 vous attend !!! Au niveau du sous-sol vous trouverez une seconde terrasse abritée en face de la piscine chauffée ainsi que des wc séparés. De quoi accueillir et ravir les familles souhaitant avoir chacun leur espace !!! Prestations annexes : chauffage au sol pompe à chaleur, volets roulants électriques / volets solaires, cheminée triple foyer, climatisation, store banne électrique, adoucisseur, aspiration centralisée, double vitrage, vidéophone, alarme, portail électrique, cuve de récupération des eaux.... Contactez moi pour une visite sans plus tarder pour visiter au 0664934505, ludivine DUPUIS Les informations sur les risques auxquels ce bien est exposé sont disponibles sur le site Géorisques : www.georisques.gouv.fr. La présente annonce immobilière a été rédigée sous la responsabilité éditoriale de Mme Ludivine DUPUIS agent commercial immatriculé au RSAC de Villefranche - Tarare sous le numéro 881 012 827, titulaire de la carte de démarchage immobilier pour le compte de la société ALBFM (451 946 206).
182.6 m²
3 258 €
51 m²
1483 m²
8
4
1
2
3
2001
Est
Ouest
Oui
1
Oui
2
Oui
Oui
Oui
Consommations énergétiques
Logement économe
193
Logement énergivore (kWhEP/m2/an)
Émissions de gaz à effet de serre
Faible émission de GES
6
Forte émission de GES(kgeqCO2/m2/an)
Contact Iad france - ludivine dupuis
Contacter gratuitement à l'aide du formulaire ci-dessous.