Maison T2 tout finie indépendante / village Senior
Châtelaudren-Plouagat 22170
0
Honoraires à la charge du vendeur.
Concept Exclusif : Village réservé seniors : 20 à 30 maisons indépendantes, et un local commun avec conciergerie (animations, services...). Maisons Bois visant DPE A, Pompe à chaleur, livrées tout équipées et finies.
Frais d'entretien et chauffage très réduits. Frais de copropriété et de conciergerie : 150 à 170 euros par mois.
Ce village senior est à CHATELAUDREN-PLOUAGAT, 300m de la Mairie. Travaux en cours - Livraison printemps 2026.
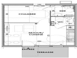
Cette Maison T2 est livrée équipée : peintures, salle de bains, sols, cuisine équipée meubles+électroménager. Seuls frais à rajouter : frais de notaire (environ 2,5%). Elle comprend : - Séjour 21,05m2, terrasse 7m2, - Une Chambre 11,4m2 - Salle d'eau douche à l'italienne meuble vasque sèche serviette, wc séparé, Parking
Nous Consulter pour plus d'infos.
Honoraires à la charge du vendeur. Dans une copropriété de 22 lots. Aucune procédure n'est en cours. Non soumis au DPE. Les informations sur les risques auxquels ce bien est exposé sont disponibles sur le site Géorisques : georisques.gouv.fr.
Votre conseiller MON BIEN A LA MER : Gérant - .fr MON BIEN A LA MER Carte T CPI 2201 2018 000 025 040 RCP ACM IARD B1 7025278
Maison contemporaine
53.1 m²
2 816 €
33 m²
2
1
1
1 (séparé)
1
1
Oui (22 lots)
Contact mon bien à la mer
Contacter gratuitement à l'aide du formulaire ci-dessous.